Maison neuve à
Mulsanne (72230) Référence : FH2402951_5

Prix du projet : Maison avec Terrain

prix 315 000 €

  • 5 pièces
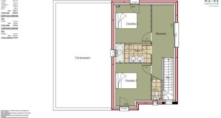
  • 3 chambres
  • Surface maison 113 m2

Maison T5 (113 m²) en vente à Mulsanne
EMPLACEMENT PRIVILÉGIÉ - MAISON 5 PIÈCES NEUVE
À vendre à 8 km du Mans, votre agence Maine Construction Le Mans est ravie de vous proposer cette maison de 5 pièces de 113 m² bénéficiant d'un emplacement d'exception dans Mulsanne (72230).
C'est une maison de 2 niveaux. Elle propose trois chambres, une cuisine et deux salles de bains. Cette maison est neuve.
Le terrain du bien s'étend sur 568 m².
Cette maison se situe dans un quartier recherché. Il y a le Collège Bollée et l'École Primaire Publique Paul Cézanne à moins de 10 minutes à pied. Niveau transports, on trouve trois gares (Laigné-Saint-Gervais, Arnage et Écommoy) à moins de 10 minutes en voiture. L'autoroute A28 est accessible à 8 km. Il y a un tennis, des commerces, quatre boulangeries, un supermarché et un bureau de poste à proximité de la maison.
Elle est proposée à l'achat pour 315 000 €.
Contactez François HOUDAYER (tél : 06-23-38-26-90) pour toute information sur le bien, sur les démarches à suivre ou sur les modalités de vente. Maine Construction Le Mans est là pour vous accompagner à toutes les étapes de l'achat.

Mentions légales

Terrain proposé par un partenaire foncier selon disponibilités et autorisation de publicité au prix de 79 000 €. Hors droit d'enregistrement et frais de notaire. Terrain + Maison proposés au prix de 315 000 € (Hors branchements et raccordements, papiers peints, peintures, revêtement de sol dans les chambres. Tarif modifiable sans préavis). Etiquette énergie : A. Différents modèles disponibles pour ce terrain. Assurances et garanties du constructeur (RC professionnelle, décennale, dommage ouvrage, garantie de remboursement de l'acompte, livraison à prix et délai convenu) : https://www.maine-construction.fr/mentions-legales/. HEXAOM Services est enregistré auprès de l'ORIAS en tant que Courtier en financement, Niveau 1, sous le numéro 14001345.

Contactez l'agence de Le Mans

02 43 21 93 33

    * Champs obligatoires

    Vos informations sont traitées par HEXAOM et transmises à un conseiller commercial qui vous contactera afin de répondre à votre demande. Les plans et images présentés sur notre site sont la propriété d’HEXAOM et ne peuvent pas être reproduits sans son accord. Pour retrouver notre politique de protection des données personnelles et exercer vos droits conformément à la « loi informatique et liberté » cliquez-ici.