Maison neuve à
Mulsanne (72230) Référence : FH2402951_14

Prix du projet : Maison avec Terrain

prix 375 000 €

  • 7 pièces
  • 3 chambres
  • Surface maison 134 m2

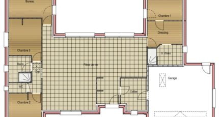
Maison T7 (134 m²) en vente à Mulsanne
EMPLACEMENT PRIVILÉGIÉ - MAISON 7 PIÈCES NEUVE
À quelques kilomètres du Mans, en vente bénéficiant d'un emplacement d'exception dans Mulsanne (72230), Maine Construction Le Mans vous présente cette maison de 7 pièces de plain-pied de 134 m² et de 568 m² de terrain.
Elle est composée de trois chambres, d'une cuisine et de deux salles de bains. La maison est neuve.
Cette maison se trouve dans un quartier attractif. Il y a le Collège Bollée et l'École Primaire Publique Paul Cézanne à moins de 10 minutes à pied. Côté transports, on trouve trois gares (Laigné-Saint-Gervais, Arnage et Écommoy) à moins de 10 minutes en voiture. Il y a un accès à l'autoroute A28 à 8 km. Il y a un tennis, des commerces, quatre boulangeries, un supermarché et un bureau de poste à quelques minutes à peine.
Son prix de vente est de 375 000 €.
N'hésitez pas à prendre contact avec François HOUDAYER (06-23-38-26-90) pour obtenir de plus amples renseignements sur la maison. Maine Construction Le Mans vous accompagne à toutes les étapes de votre projet et dans toutes vos démarches.

Mentions légales

Terrain proposé par un partenaire foncier selon disponibilités et autorisation de publicité au prix de 79 000 €. Hors droit d'enregistrement et frais de notaire. Terrain + Maison proposés au prix de 375 000 € (Hors branchements et raccordements, papiers peints, peintures, revêtement de sol dans les chambres. Tarif modifiable sans préavis). Etiquette énergie : A. Différents modèles disponibles pour ce terrain. Assurances et garanties du constructeur (RC professionnelle, décennale, dommage ouvrage, garantie de remboursement de l'acompte, livraison à prix et délai convenu) : https://www.maine-construction.fr/mentions-legales/. HEXAOM Services est enregistré auprès de l'ORIAS en tant que Courtier en financement, Niveau 1, sous le numéro 14001345.

Contactez l'agence de Le Mans

02 43 21 93 33

    * Champs obligatoires

    Vos informations sont traitées par HEXAOM et transmises à un conseiller commercial qui vous contactera afin de répondre à votre demande. Les plans et images présentés sur notre site sont la propriété d’HEXAOM et ne peuvent pas être reproduits sans son accord. Pour retrouver notre politique de protection des données personnelles et exercer vos droits conformément à la « loi informatique et liberté » cliquez-ici.