Maison neuve à
Mulsanne (72230) Référence : FH2402951_13

Prix du projet : Maison avec Terrain

prix 405 000 €

  • 5 pièces
  • 4 chambres
  • Surface maison 144 m2

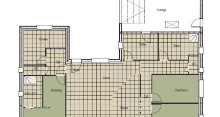
VENTE : maison de 5 pièces (144 m²) à Mulsanne
EMPLACEMENT PRIVILÉGIÉ - MAISON 5 PIÈCES NEUVE
En vente : à 8 km du Mans, nous sommes heureux de vous présenter, bénéficiant d'un emplacement privilégié dans Mulsanne (72230), cette maison de 5 pièces de plain-pied de 144 m² et de 568 m² de terrain.
Son intérieur est composé de quatre chambres, d'une cuisine et de deux salles de bains. Cette maison est neuve.
La maison est située dans un quartier attractif. On trouve le Collège Bollée et l'École Primaire Publique Paul Cézanne à moins de 10 minutes à pied. Côté transports, il y a trois gares (Laigné-Saint-Gervais, Arnage et Écommoy) à moins de 10 minutes en voiture. Il y a un accès à l'autoroute A28 à 8 km. On trouve un tennis, des commerces, quatre boulangeries, un supermarché et un bureau de poste dans les environs.
Elle est proposée à l'achat pour 405 000 €.
Prenez contact avec notre agence (HOUDAYER François : 06-23-38-26-90) pour toute information sur la maison ou sur les modalités de vente.

Mentions légales

Terrain proposé par un partenaire foncier selon disponibilités et autorisation de publicité au prix de 79 000 €. Hors droit d'enregistrement et frais de notaire. Terrain + Maison proposés au prix de 405 000 € (Hors branchements et raccordements, papiers peints, peintures, revêtement de sol dans les chambres. Tarif modifiable sans préavis). Etiquette énergie : A. Différents modèles disponibles pour ce terrain. Assurances et garanties du constructeur (RC professionnelle, décennale, dommage ouvrage, garantie de remboursement de l'acompte, livraison à prix et délai convenu) : https://www.maine-construction.fr/mentions-legales/. HEXAOM Services est enregistré auprès de l'ORIAS en tant que Courtier en financement, Niveau 1, sous le numéro 14001345.

Contactez l'agence de Le Mans

02 43 21 93 33

    * Champs obligatoires

    Vos informations sont traitées par HEXAOM et transmises à un conseiller commercial qui vous contactera afin de répondre à votre demande. Les plans et images présentés sur notre site sont la propriété d’HEXAOM et ne peuvent pas être reproduits sans son accord. Pour retrouver notre politique de protection des données personnelles et exercer vos droits conformément à la « loi informatique et liberté » cliquez-ici.