Maison neuve à
Mulsanne (72230) Référence : FH2402951_11

Prix du projet : Maison avec Terrain

prix 225 000 €

  • 3 pièces
  • 2 chambres
  • Surface maison 65 m2

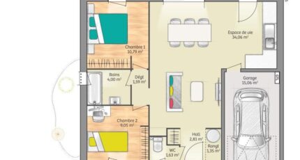
Mulsanne : maison F3 (65 m²) en vente
EMPLACEMENT PRIVILÉGIÉ - MAISON 3 PIÈCES NEUVE
En vente : à deux pas du Mans, bénéficiant d'un emplacement d'exception dans Mulsanne (72230), découvrez cette maison de 3 pièces de plain-pied de 65 m² et de 568 m² de terrain. Son intérieur compte deux chambres, une cuisine et une salle de bains.
Cette maison est neuve.
Cette maison se situe dans un secteur recherché. Il y a le Collège Bollée et l'École Primaire Publique Paul Cézanne à moins de 10 minutes à pied. Niveau transports en commun, on trouve les gares Laigné-Saint-Gervais, Arnage et Écommoy à moins de 10 minutes en voiture. L'autoroute A28 est accessible à 8 km. Il y a un tennis, des commerces, quatre boulangeries, un supermarché et un bureau de poste à proximité de la maison.
Elle est proposée à l'achat pour 225 000 €.
Contactez notre agence (François HOUDAYER : 06-23-38-26-90) pour tout renseignement sur la maison ou sur les modalités de vente.

Mentions légales

Terrain proposé par un partenaire foncier selon disponibilités et autorisation de publicité au prix de 79 000 €. Hors droit d'enregistrement et frais de notaire. Terrain + Maison proposés au prix de 225 000 € (Hors branchements et raccordements, papiers peints, peintures, revêtement de sol dans les chambres. Tarif modifiable sans préavis). Etiquette énergie : A. Différents modèles disponibles pour ce terrain. Assurances et garanties du constructeur (RC professionnelle, décennale, dommage ouvrage, garantie de remboursement de l'acompte, livraison à prix et délai convenu) : https://www.maine-construction.fr/mentions-legales/. HEXAOM Services est enregistré auprès de l'ORIAS en tant que Courtier en financement, Niveau 1, sous le numéro 14001345.

Contactez l'agence de Le Mans

02 43 21 93 33

    * Champs obligatoires

    Vos informations sont traitées par HEXAOM et transmises à un conseiller commercial qui vous contactera afin de répondre à votre demande. Les plans et images présentés sur notre site sont la propriété d’HEXAOM et ne peuvent pas être reproduits sans son accord. Pour retrouver notre politique de protection des données personnelles et exercer vos droits conformément à la « loi informatique et liberté » cliquez-ici.