Maison neuve à
Moncé-en-Belin (72230) Référence : LL2453379_5

Prix du projet : Maison avec Terrain

prix 299 000 €

  • 5 pièces
  • 4 chambres
  • Surface maison 112 m2

VENTE : maison de 5 pièces (112 m²) à Moncé-en-Belin
IDÉALEMENT SITUÉE - MAISON 5 PIÈCES NEUVE
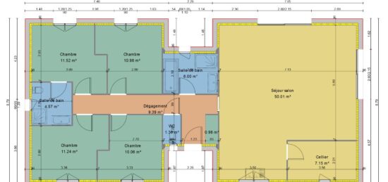
À vendre : à deux pas du Mans, idéalement située dans Moncé-en-Belin (72230), nous sommes heureux de vous présenter cette maison de 5 pièces de plain-pied de 112 m².
Conçue de plain-pied, elle inclut quatre chambres, une cuisine et une salle de bains. Cette maison est neuve.
Le terrain du bien s'étend sur 379 m².
La propriété se trouve dans un secteur recherché. Il y a l'École Maternelle Publique les Capucines et l'École Élémentaire Publique les Coquelicots à moins de 10 minutes à pied. Niveau transports, on trouve quatre gares à moins de 10 minutes en voiture. Les autoroutes A11 et A28 sont accessibles à moins de 12 km. Il y a une bibliothèque dans les environs.
Elle est à vendre pour la somme de 299 000 €.
Prenez contact avec notre agence (Luc LIVET ) pour plus de renseignements sur la maison. Maine Construction Le Mans est là pour vous accompagner dans toutes vos démarches.

Mentions légales

Terrain proposé par un partenaire foncier selon disponibilités et autorisation de publicité au prix de 50 000 €. Hors droit d'enregistrement et frais de notaire. Terrain + Maison proposés au prix de 299 000 € (Hors branchements et raccordements, papiers peints, peintures, revêtement de sol dans les chambres. Tarif modifiable sans préavis). Etiquette énergie : A. Différents modèles disponibles pour ce terrain. Assurances et garanties du constructeur (RC professionnelle, décennale, dommage ouvrage, garantie de remboursement de l'acompte, livraison à prix et délai convenu) : https://www.maine-construction.fr/mentions-legales/. HEXAOM Services est enregistré auprès de l'ORIAS en tant que Courtier en financement, Niveau 1, sous le numéro 14001345.

Contactez l'agence de Le Mans

02 43 21 93 33

    * Champs obligatoires

    Vos informations sont traitées par HEXAOM et transmises à un conseiller commercial qui vous contactera afin de répondre à votre demande. Les plans et images présentés sur notre site sont la propriété d’HEXAOM et ne peuvent pas être reproduits sans son accord. Pour retrouver notre politique de protection des données personnelles et exercer vos droits conformément à la « loi informatique et liberté » cliquez-ici.