Maison neuve à
Luceau (72500) Référence : LL2348326_6

Prix du projet : Maison avec Terrain

prix 249 000 €

  • 6 pièces
  • 4 chambres
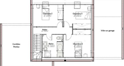
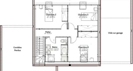
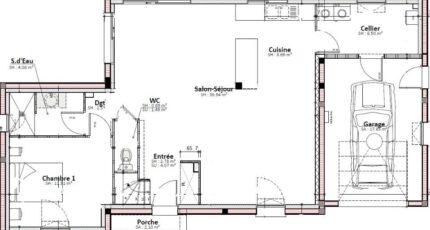
  • Surface maison 108 m2

VENTE : maison T6 (108 m²) à Luceau
MAISON 6 PIÈCES NEUVE
En vente à Luceau (72500), Maine Construction Le Mans vous propose cette maison de 6 pièces de 108 m² et de 518 m² de terrain. Son intérieur inclut quatre chambres, une cuisine et deux salles de bains.
Il s'agit d'une maison de 2 niveaux. Elle est neuve.
L'École Primaire Publique les Lucioles est implantée à moins de 10 minutes à pied. Niveau transports en commun, on trouve les gares Château-du-Loir et Vaas à moins de 10 minutes en voiture. L'autoroute A28 est accessible à 4 km. Il y a un commerce à quelques minutes.
Son prix de vente est de 249 000 €.
Contactez notre agence (LIVET Luc : 07-77-76-37-30) pour plus d'informations sur la maison ou sur les démarches à suivre. Donnez vie à vos projets immobiliers avec Maine Construction Le Mans.

Mentions légales

Terrain proposé par un partenaire foncier selon disponibilités et autorisation de publicité au prix de 22 100 €. Hors droit d'enregistrement et frais de notaire. Terrain + Maison proposés au prix de 249 000 € (Hors branchements et raccordements, papiers peints, peintures, revêtement de sol dans les chambres. Tarif modifiable sans préavis). Etiquette énergie : A. Différents modèles disponibles pour ce terrain. Assurances et garanties du constructeur (RC professionnelle, décennale, dommage ouvrage, garantie de remboursement de l'acompte, livraison à prix et délai convenu) : https://www.maine-construction.fr/mentions-legales/. HEXAOM Services est enregistré auprès de l'ORIAS en tant que Courtier en financement, Niveau 1, sous le numéro 14001345.

Contactez l'agence de Le Mans

02 43 21 93 33

    * Champs obligatoires

    Vos informations sont traitées par HEXAOM et transmises à un conseiller commercial qui vous contactera afin de répondre à votre demande. Les plans et images présentés sur notre site sont la propriété d’HEXAOM et ne peuvent pas être reproduits sans son accord. Pour retrouver notre politique de protection des données personnelles et exercer vos droits conformément à la « loi informatique et liberté » cliquez-ici.