Maison neuve à
Luceau (72500) Référence : LL2348326_1

Prix du projet : Maison avec Terrain

prix 165 000 €

  • 3 pièces
  • 2 chambres
  • Surface maison 65 m2

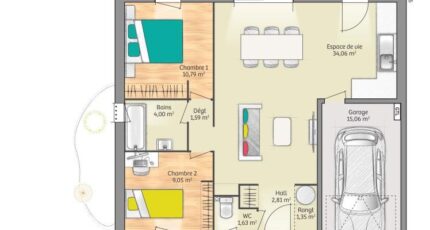
Maison de 3 pièces (65 m²) à vendre à Luceau
MAISON 3 PIÈCES NEUVE
Nous vous présentons cette maison de 3 pièces de plain-pied de 65 m² et de 518 m² de terrain à vendre à Luceau (72500). Conçue de plain-pied, elle compte deux chambres, une cuisine et une salle de bains.
La maison est neuve.
L'École Primaire Publique les Lucioles est implantée à moins de 10 minutes à pied. Niveau transports, on trouve deux gares (Château-du-Loir et Vaas) à moins de 10 minutes en voiture. Il y a un accès à l'autoroute A28 à 4 km. Il y a un commerce à proximité.
Elle est à vendre pour la somme de 165 000 €.
Prenez contact avec Luc LIVET (07-77-76-37-30) Maine Construction Le Mans pour toute information sur cette maison ou sur les modalités de vente.

Mentions légales

Terrain proposé par un partenaire foncier selon disponibilités et autorisation de publicité au prix de 22 100 €. Hors droit d'enregistrement et frais de notaire. Terrain + Maison proposés au prix de 165 000 € (Hors branchements et raccordements, papiers peints, peintures, revêtement de sol dans les chambres. Tarif modifiable sans préavis). Etiquette énergie : A. Différents modèles disponibles pour ce terrain. Assurances et garanties du constructeur (RC professionnelle, décennale, dommage ouvrage, garantie de remboursement de l'acompte, livraison à prix et délai convenu) : https://www.maine-construction.fr/mentions-legales/. HEXAOM Services est enregistré auprès de l'ORIAS en tant que Courtier en financement, Niveau 1, sous le numéro 14001345.

Contactez l'agence de Le Mans

02 43 21 93 33

    * Champs obligatoires

    Vos informations sont traitées par HEXAOM et transmises à un conseiller commercial qui vous contactera afin de répondre à votre demande. Les plans et images présentés sur notre site sont la propriété d’HEXAOM et ne peuvent pas être reproduits sans son accord. Pour retrouver notre politique de protection des données personnelles et exercer vos droits conformément à la « loi informatique et liberté » cliquez-ici.