Maison neuve à
Louplande (72210) Référence : FH2317445_8

Prix du projet : Maison avec Terrain

prix 276 000 €

  • 5 pièces
  • 3 chambres
  • Surface maison 100 m2

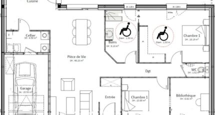
VENTE d'une maison de 5 pièces (100 m²) à Louplande
EMPLACEMENT PRIVILÉGIÉ - MAISON 5 PIÈCES NEUVE
À vendre : à 12 km du Mans, votre agence Maine Construction Le Mans est heureuse de vous présenter cette maison de 5 pièces de plain-pied de 100 m², bénéficiant d'un emplacement d'exception dans Louplande (72210).
Conçue de plain-pied, elle compte trois chambres, une cuisine et une salle de bains. La maison est neuve.
Le terrain du bien s'étend sur 518 m².
Le bien se trouve dans un quartier convoité. Il y a l'École Primaire Publique Mozart à moins de 10 minutes à pied. Côté transports, on trouve les gares Voivres-lès-le-Mans et La Suze-sur-Sarthe à moins de 10 minutes en voiture. L'autoroute A11 est accessible à 3 km. Il y a un tennis, une bibliothèque, un commerce et deux boulangeries à quelques minutes de la maison.
Il est proposé à l'achat pour 276 000 €.
Contactez François HOUDAYER (tél : 06-23-38-26-90) pour tout renseignement sur la maison ou sur les modalités de vente. Maine Construction Le Mans vous accompagne à toutes les étapes de l'achat et dans toutes vos démarches.

Mentions légales

Terrain proposé par un partenaire foncier selon disponibilités et autorisation de publicité au prix de 49 100 €. Hors droit d'enregistrement et frais de notaire. Maison proposée, avec un contrat de construction de maison individuelle, dans le cadre de la loi du 19/12/1990, au prix de 226 900 € (Hors branchements et raccordements, papiers peints, peintures, revêtement de sol dans les chambres, qui sont chiffrés dans les travaux qui restent à charge du client. Tarif modifiable sans préavis). Étiquette énergie : A. Différents modèles disponibles pour ce terrain. Assurances et garanties du constructeur comprises (RC professionnelle, décennale, dommage ouvrage).

Contactez l'agence de Le Mans

02 43 21 93 33

    * Champs obligatoires

    Vos informations sont traitées par HEXAOM et transmises à un conseiller commercial qui vous contactera afin de répondre à votre demande. Les plans et images présentés sur notre site sont la propriété d’HEXAOM et ne peuvent pas être reproduits sans son accord. Pour retrouver notre politique de protection des données personnelles et exercer vos droits conformément à la « loi informatique et liberté » cliquez-ici.