Maison neuve à
Louplande (72210) Référence : FH2317445_4

Prix du projet : Maison avec Terrain

prix 215 000 €

  • 5 pièces
  • 3 chambres
  • Surface maison 73 m2

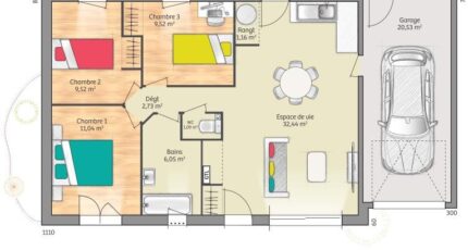
Maison de 5 pièces (73 m²) en vente à Louplande
EMPLACEMENT PRIVILÉGIÉ - MAISON 5 PIÈCES NEUVE
En vente à 12 km du Mans, nous vous présentons, bénéficiant d'un emplacement d'exception dans Louplande (72210), cette maison de 5 pièces de plain-pied de 73 m².
Elle inclut trois chambres, une cuisine et une salle de bains. Cette maison est neuve.
Le terrain du bien s'étend sur 518 m².
La maison se trouve dans un quartier convoité. L'École Primaire Publique Mozart est implantée à moins de 10 minutes à pied. Côté transports en commun, on trouve deux gares (Voivres-lès-le-Mans et La Suze-sur-Sarthe) à moins de 10 minutes en voiture. L'autoroute A11 est accessible à 3 km. Il y a un tennis, une bibliothèque, un commerce et deux boulangeries à quelques minutes à peine.
Son prix de vente est de 215 000 €.
Prenez contact avec notre agence (HOUDAYER François : 06-23-38-26-90) pour tout renseignement sur la maison. Concrétisez vos projets immobiliers avec Maine Construction Le Mans.

Mentions légales

Terrain proposé par un partenaire foncier selon disponibilités et autorisation de publicité au prix de 49 100 €. Hors droit d'enregistrement et frais de notaire. Maison proposée, avec un contrat de construction de maison individuelle, dans le cadre de la loi du 19/12/1990, au prix de 165 900 € (Hors branchements et raccordements, papiers peints, peintures, revêtement de sol dans les chambres, qui sont chiffrés dans les travaux qui restent à charge du client. Tarif modifiable sans préavis). Étiquette énergie : A. Différents modèles disponibles pour ce terrain. Assurances et garanties du constructeur comprises (RC professionnelle, décennale, dommage ouvrage).

Contactez l'agence de Le Mans

02 43 21 93 33

    * Champs obligatoires

    Vos informations sont traitées par HEXAOM et transmises à un conseiller commercial qui vous contactera afin de répondre à votre demande. Les plans et images présentés sur notre site sont la propriété d’HEXAOM et ne peuvent pas être reproduits sans son accord. Pour retrouver notre politique de protection des données personnelles et exercer vos droits conformément à la « loi informatique et liberté » cliquez-ici.