Maison neuve à
Louplande (72210) Référence : FH2317445_12

Prix du projet : Maison avec Terrain

prix 345 000 €

  • 4 pièces
  • 4 chambres
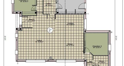
  • Surface maison 143 m2

Louplande : maison F4 (143 m²) en vente
EMPLACEMENT PRIVILÉGIÉ - MAISON 4 PIÈCES NEUVE
À 12 km du Mans, venez découvrir cette maison de 4 pièces de plain-pied de 143 m² et de 518 m² de terrain en vente, bénéficiant d'un emplacement d'exception dans Louplande (72210). Elle compte quatre chambres, une cuisine et deux salles de bains.
Cette maison est neuve.
La maison se trouve dans un secteur attractif. Il y a l'École Primaire Publique Mozart à moins de 10 minutes à pied. Côté transports en commun, on trouve deux gares (Voivres-lès-le-Mans et La Suze-sur-Sarthe) à moins de 10 minutes en voiture. Il y a un accès à l'autoroute A11 à 3 km. Il y a un tennis, une bibliothèque, un commerce et deux boulangeries à quelques minutes.
Son prix de vente est de 345 000 €.
Prenez contact avec notre agence (François HOUDAYER : 06-23-38-26-90) pour toute information sur la maison ou sur les démarches à suivre.

Mentions légales

Terrain proposé par un partenaire foncier selon disponibilités et autorisation de publicité au prix de 49 100 €. Hors droit d'enregistrement et frais de notaire. Maison proposée, avec un contrat de construction de maison individuelle, dans le cadre de la loi du 19/12/1990, au prix de 295 900 € (Hors branchements et raccordements, papiers peints, peintures, revêtement de sol dans les chambres, qui sont chiffrés dans les travaux qui restent à charge du client. Tarif modifiable sans préavis). Étiquette énergie : A. Différents modèles disponibles pour ce terrain. Assurances et garanties du constructeur comprises (RC professionnelle, décennale, dommage ouvrage).

Contactez l'agence de Le Mans

02 43 21 93 33

    * Champs obligatoires

    Vos informations sont traitées par HEXAOM et transmises à un conseiller commercial qui vous contactera afin de répondre à votre demande. Les plans et images présentés sur notre site sont la propriété d’HEXAOM et ne peuvent pas être reproduits sans son accord. Pour retrouver notre politique de protection des données personnelles et exercer vos droits conformément à la « loi informatique et liberté » cliquez-ici.