Maison neuve à
Louplande (72210) Référence : FH2317445_10

Prix du projet : Maison avec Terrain

prix 245 000 €

  • 3 pièces
  • 2 chambres
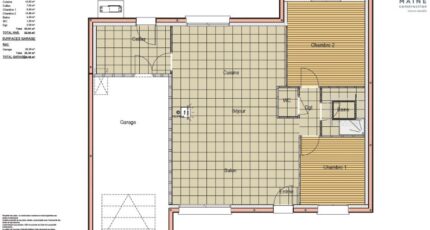
  • Surface maison 83 m2

VENTE : maison T3 (83 m²) à Louplande
EMPLACEMENT PRIVILÉGIÉ - MAISON 3 PIÈCES NEUVE
En vente à quelques kilomètres du Mans, nous vous présentons cette maison de 3 pièces de plain-pied de 83 m² bénéficiant d'un emplacement d'exception dans Louplande (72210). Son intérieur propose deux chambres, une cuisine et une salle de bains.
Le terrain de la propriété s'étend sur 518 m².
La maison est neuve.
Cette maison se trouve dans un quartier recherché. Il y a l'École Primaire Publique Mozart à moins de 10 minutes à pied. Niveau transports en commun, on trouve deux gares (Voivres-lès-le-Mans et La Suze-sur-Sarthe) à moins de 10 minutes en voiture. Il y a un accès à l'autoroute A11 à 3 km. Il y a un tennis, une bibliothèque, un commerce et deux boulangeries à quelques minutes du bien.
Son prix de vente est de 245 000 €.
Contactez François HOUDAYER (tél : 06-23-38-26-90) pour obtenir de plus amples renseignements sur la maison ou sur les modalités de vente. Maine Construction Le Mans est là pour vous accompagner à toutes les étapes de votre projet.

Mentions légales

Terrain proposé par un partenaire foncier selon disponibilités et autorisation de publicité au prix de 49 100 €. Hors droit d'enregistrement et frais de notaire. Maison proposée, avec un contrat de construction de maison individuelle, dans le cadre de la loi du 19/12/1990, au prix de 195 900 € (Hors branchements et raccordements, papiers peints, peintures, revêtement de sol dans les chambres, qui sont chiffrés dans les travaux qui restent à charge du client. Tarif modifiable sans préavis). Étiquette énergie : A. Différents modèles disponibles pour ce terrain. Assurances et garanties du constructeur comprises (RC professionnelle, décennale, dommage ouvrage).

Contactez l'agence de Le Mans

02 43 21 93 33

    * Champs obligatoires

    Vos informations sont traitées par HEXAOM et transmises à un conseiller commercial qui vous contactera afin de répondre à votre demande. Les plans et images présentés sur notre site sont la propriété d’HEXAOM et ne peuvent pas être reproduits sans son accord. Pour retrouver notre politique de protection des données personnelles et exercer vos droits conformément à la « loi informatique et liberté » cliquez-ici.