Maison neuve à
Longnes (72540) Référence : LL2325738_6

Prix du projet : Maison avec Terrain

prix 259 000 €

  • 6 pièces
  • 4 chambres
  • Surface maison 108 m2

VENTE d'une maison de 6 pièces (108 m²) à Longnes
PROCHE DU MANS - MAISON 6 PIÈCES NEUVE
À deux pas du Mans, nous vous proposons cette maison de 6 pièces de 108 m² en vente à Longnes (72540).
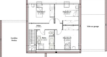
Cette maison compte 2 niveaux. Son intérieur dispose de quatre chambres, d'une cuisine et de deux salles de bains. Cette maison est neuve.
Le terrain de la propriété est de 592 m².
Il y a l'École Élémentaire Publique à moins de 10 minutes à pied. L'autoroute A81 est accessible à 10 km.
Elle est proposée à l'achat pour 259 000 €.
Contactez Luc LIVET (07-77-76-37-30) Maine Construction Le Mans pour obtenir de plus amples renseignements sur la maison ou sur les modalités de vente.

Mentions légales

Terrain proposé par un partenaire foncier selon disponibilités et autorisation de publicité au prix de 33 200 €. Hors droit d'enregistrement et frais de notaire. Terrain + Maison proposés au prix de 259 000 € (Hors branchements et raccordements, papiers peints, peintures, revêtement de sol dans les chambres. Tarif modifiable sans préavis). Etiquette énergie : A. Différents modèles disponibles pour ce terrain. Assurances et garanties du constructeur (RC professionnelle, décennale, dommage ouvrage, garantie de remboursement de l'acompte, livraison à prix et délai convenu) : https://www.maine-construction.fr/mentions-legales/. HEXAOM Services est enregistré auprès de l'ORIAS en tant que Courtier en financement, Niveau 1, sous le numéro 14001345.

Contactez l'agence de Le Mans

02 43 21 93 33

    * Champs obligatoires

    Vos informations sont traitées par HEXAOM et transmises à un conseiller commercial qui vous contactera afin de répondre à votre demande. Les plans et images présentés sur notre site sont la propriété d’HEXAOM et ne peuvent pas être reproduits sans son accord. Pour retrouver notre politique de protection des données personnelles et exercer vos droits conformément à la « loi informatique et liberté » cliquez-ici.