Maison neuve à
Longnes (72540) Référence : LL2325738_5

Prix du projet : Maison avec Terrain

prix 255 000 €

  • 6 pièces
  • 4 chambres
  • Surface maison 105 m2

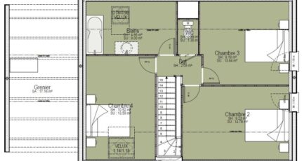
Maison de 6 pièces (105 m²) à vendre à Longnes
PROCHE DU MANS - MAISON 6 PIÈCES NEUVE
En vente : localisée à 21 km du Mans, nous vous proposons cette maison de 6 pièces de 105 m² à Longnes (72540).
Cette maison comporte 2 niveaux. Elle dispose de quatre chambres, d'une cuisine et de deux salles de bains. La maison est neuve.
Le terrain du bien s'étend sur 592 m².
L'École Élémentaire Publique est implantée à moins de 10 minutes à pied. L'autoroute A81 est accessible à 10 km.
Il est proposé à l'achat pour 255 000 €.
N'hésitez pas à prendre contact avec notre agence (LIVET Luc : 07-77-76-37-30)Maine Construction Le Mans pour tout renseignement sur la maison.

Mentions légales

Terrain proposé par un partenaire foncier selon disponibilités et autorisation de publicité au prix de 33 200 €. Hors droit d'enregistrement et frais de notaire. Terrain + Maison proposés au prix de 255 000 € (Hors branchements et raccordements, papiers peints, peintures, revêtement de sol dans les chambres. Tarif modifiable sans préavis). Etiquette énergie : A. Différents modèles disponibles pour ce terrain. Assurances et garanties du constructeur (RC professionnelle, décennale, dommage ouvrage, garantie de remboursement de l'acompte, livraison à prix et délai convenu) : https://www.maine-construction.fr/mentions-legales/. HEXAOM Services est enregistré auprès de l'ORIAS en tant que Courtier en financement, Niveau 1, sous le numéro 14001345.

Contactez l'agence de Le Mans

02 43 21 93 33

    * Champs obligatoires

    Vos informations sont traitées par HEXAOM et transmises à un conseiller commercial qui vous contactera afin de répondre à votre demande. Les plans et images présentés sur notre site sont la propriété d’HEXAOM et ne peuvent pas être reproduits sans son accord. Pour retrouver notre politique de protection des données personnelles et exercer vos droits conformément à la « loi informatique et liberté » cliquez-ici.