Maison neuve à
Le Mans (72000) Référence : FH2323272_4

Prix du projet : Maison avec Terrain

prix 345 000 €

  • 5 pièces
  • 4 chambres
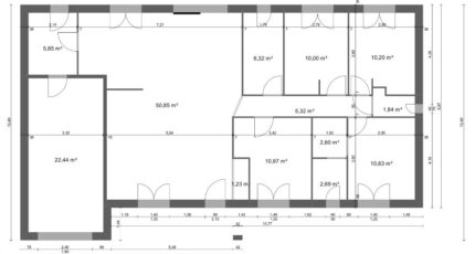
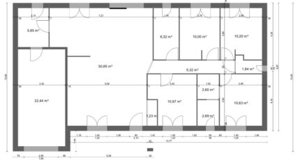
  • Surface maison 118 m2

Maison de 5 pièces (118 m²) à vendre au Mans
PROCHE CENTRE-VILLE - MAISON 5 PIÈCES NEUVE
En vente : nous sommes heureux de vous présenter cette maison de 5 pièces de plain-pied de 118 m² proche du centre-ville du Mans (72000).
Conçue de plain-pied, elle comporte quatre chambres, une cuisine et une salle de bains. Cette maison est neuve.
Le terrain de la propriété s'étend sur 349 m².
Il y a le lycée Institut Technologique Européen des Métiers de la Musique à moins de 10 minutes à pied, deux structures d'accueil pour les enfants en bas âge et l'Université du Mans et l'Institut supérieur des matériaux du Mans pour le supérieur. Côté transports, on trouve trois gares (Le Mans, Neuville-sur-Sarthe et Arnage) à moins de 10 minutes en voiture. Il y a un accès à l'autoroute A11 à 3 km. Il y a deux tennis, trois boulangeries, des commerces, un supermarché et un bureau de poste à quelques minutes à peine.
Elle est à vendre pour la somme de 345 000 €.
Contactez François HOUDAYER (tél : 06-23-38-26-90) pour plus de renseignements sur la maison, sur les modalités de vente ou sur les démarches à suivre.

Mentions légales

Terrain proposé par un partenaire foncier selon disponibilités et autorisation de publicité au prix de 95 000 €. Hors droit d'enregistrement et frais de notaire. Maison proposée, avec un contrat de construction de maison individuelle, dans le cadre de la loi du 19/12/1990, au prix de 250 000 € (Hors branchements et raccordements, papiers peints, peintures, revêtement de sol dans les chambres, qui sont chiffrés dans les travaux qui restent à charge du client. Tarif modifiable sans préavis). Étiquette énergie : A. Différents modèles disponibles pour ce terrain. Assurances et garanties du constructeur comprises (RC professionnelle, décennale, dommage ouvrage).

Contactez l'agence de Le Mans

02 43 21 93 33

    * Champs obligatoires

    Vos informations sont traitées par HEXAOM et transmises à un conseiller commercial qui vous contactera afin de répondre à votre demande. Les plans et images présentés sur notre site sont la propriété d’HEXAOM et ne peuvent pas être reproduits sans son accord. Pour retrouver notre politique de protection des données personnelles et exercer vos droits conformément à la « loi informatique et liberté » cliquez-ici.