Maison neuve à
Le Mans (72000) Référence : FH2323272_3

Prix du projet : Maison avec Terrain

prix 268 000 €

  • 4 pièces
  • 3 chambres
  • Surface maison 76 m2

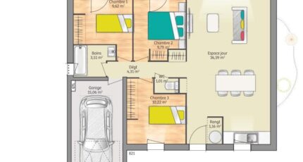
Maison T4 (76 m²) en vente au Mans
PROCHE CENTRE-VILLE - MAISON 4 PIÈCES NEUVE
À vendre : venez découvrir, proche du centre-ville du Mans (72000), cette maison de 4 pièces de plain-pied de 76 m² et de 349 m² de terrain.
Son intérieur est composé de trois chambres, d'une cuisine et d'une salle de bains. La maison est neuve.
Le lycée Institut Technologique Européen des Métiers de la Musique se trouve à moins de 10 minutes à pied, deux crèches, tout comme deux établissements du supérieur à proximité : l'Université du Mans et l'Institut supérieur des matériaux du Mans. Niveau transports, il y a trois gares (Le Mans, Neuville-sur-Sarthe et Arnage) à moins de 10 minutes en voiture. L'autoroute A11 est accessible à 3 km. On trouve deux tennis, trois boulangeries, des commerces, un supermarché et un bureau de poste à quelques minutes du logement.
Elle est à vendre pour la somme de 268 000 €.
Prenez contact avec François HOUDAYER (tél : 06-23-38-26-90) pour toute information sur le bien.

Mentions légales

Terrain proposé par un partenaire foncier selon disponibilités et autorisation de publicité au prix de 95 000 €. Hors droit d'enregistrement et frais de notaire. Maison proposée, avec un contrat de construction de maison individuelle, dans le cadre de la loi du 19/12/1990, au prix de 173 000 € (Hors branchements et raccordements, papiers peints, peintures, revêtement de sol dans les chambres, qui sont chiffrés dans les travaux qui restent à charge du client. Tarif modifiable sans préavis). Étiquette énergie : A. Différents modèles disponibles pour ce terrain. Assurances et garanties du constructeur comprises (RC professionnelle, décennale, dommage ouvrage).

Contactez l'agence de Le Mans

02 43 21 93 33

    * Champs obligatoires

    Vos informations sont traitées par HEXAOM et transmises à un conseiller commercial qui vous contactera afin de répondre à votre demande. Les plans et images présentés sur notre site sont la propriété d’HEXAOM et ne peuvent pas être reproduits sans son accord. Pour retrouver notre politique de protection des données personnelles et exercer vos droits conformément à la « loi informatique et liberté » cliquez-ici.