Maison neuve à
Le Mans (72000) Référence : FH2323272_11

Prix du projet : Maison avec Terrain

prix 443 000 €

  • 7 pièces
  • 4 chambres
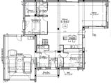
  • Surface maison 160 m2

VENTE d'une maison T7 (160 m²) au Mans
PROCHE CENTRE-VILLE - MAISON 7 PIÈCES NEUVE
En vente : nous vous proposons, proche du centre-ville du Mans (72000), cette maison de 7 pièces de 160 m² et de 349 m² de terrain. Son intérieur propose quatre chambres, une cuisine et deux salles de bains.
Cette maison possède 2 niveaux. Elle est neuve.
Le lycée Institut Technologique Européen des Métiers de la Musique est implanté à moins de 10 minutes à pied, deux structures d'accueil pour la petite enfance, tout comme deux établissements du supérieur dans un rayon de 1 km : l'Université du Mans et l'Institut supérieur des matériaux du Mans. Niveau transports en commun, on trouve les gares Le Mans, Neuville-sur-Sarthe et Arnage à moins de 10 minutes en voiture. L'autoroute A11 est accessible à 3 km. Il y a deux tennis, trois boulangeries, des commerces, un supermarché et un bureau de poste à quelques minutes du logement.
Elle est proposée à l'achat pour 443 000 €.
Contactez notre agence (François HOUDAYER : 06-23-38-26-90) pour obtenir de plus amples renseignements sur la maison, sur les démarches à suivre ou sur les modalités de vente. Maine Construction Le Mans vous accompagne à toutes les étapes de votre projet et dans tous vos projets immobiliers.

Mentions légales

Terrain proposé par un partenaire foncier selon disponibilités et autorisation de publicité au prix de 95 000 €. Hors droit d'enregistrement et frais de notaire. Maison proposée, avec un contrat de construction de maison individuelle, dans le cadre de la loi du 19/12/1990, au prix de 348 000 € (Hors branchements et raccordements, papiers peints, peintures, revêtement de sol dans les chambres, qui sont chiffrés dans les travaux qui restent à charge du client. Tarif modifiable sans préavis). Étiquette énergie : A. Différents modèles disponibles pour ce terrain. Assurances et garanties du constructeur comprises (RC professionnelle, décennale, dommage ouvrage).

Contactez l'agence de Le Mans

02 43 21 93 33

    * Champs obligatoires

    Vos informations sont traitées par HEXAOM et transmises à un conseiller commercial qui vous contactera afin de répondre à votre demande. Les plans et images présentés sur notre site sont la propriété d’HEXAOM et ne peuvent pas être reproduits sans son accord. Pour retrouver notre politique de protection des données personnelles et exercer vos droits conformément à la « loi informatique et liberté » cliquez-ici.