Maison neuve à
Le Mans (72000) Référence : FH2433825_6

Prix du projet : Maison avec Terrain

prix 185 000 €

  • 4 pièces
  • 3 chambres
  • Surface maison 57 m2

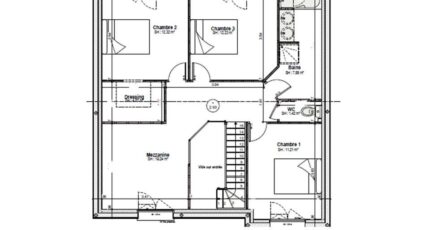
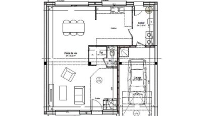
Le Mans : maison F4 (57 m²) à vendre
QUARTIER RECHERCHÉ - MAISON 4 PIÈCES NEUVE
Nous vous proposons cette maison de 4 pièces de 57 m² en vente nichée dans un quartier prisé du Mans (72000).
Il s'agit d'une maison de 2 niveaux. Elle compte trois chambres, une cuisine et une salle de bains. Cette maison est neuve.
Le terrain de la propriété s'étend sur 385 m².
Le bien se trouve dans un secteur recherché. Il y a l'École Secondaire Professionnelle Privée Usin'up Academy-le Mans et l'Institut Technologique Européen des Métiers de la Musique à moins de 10 minutes à pied, deux crèches et deux établissements du supérieur à quelques pas de la maison : l'Université du Mans et l'Institut supérieur des matériaux du Mans. Côté transports en commun, on trouve trois gares (Le Mans, Neuville-sur-Sarthe et Arnage) à moins de 10 minutes en voiture. Il y a un accès à l'autoroute A11 à 3 km. Il y a deux tennis, trois boulangeries, des commerces, un supermarché et un bureau de poste à quelques minutes à peine.
Il est proposé à l'achat pour 185 000 €.
Prenez contact avec François HOUDAYER (tél : 06-23-38-26-90) pour toute information sur la maison. Faites de vos projets immobiliers une réalité avec Maine Construction Le Mans.

Mentions légales

Terrain proposé par un partenaire foncier selon disponibilités et autorisation de publicité au prix de 77 500 €. Hors droit d'enregistrement et frais de notaire. Terrain + Maison proposés au prix de 185 000 € (Hors branchements et raccordements, papiers peints, peintures, revêtement de sol dans les chambres. Tarif modifiable sans préavis). Etiquette énergie : A. Différents modèles disponibles pour ce terrain. Assurances et garanties du constructeur (RC professionnelle, décennale, dommage ouvrage, garantie de remboursement de l'acompte, livraison à prix et délai convenu) : https://www.maine-construction.fr/mentions-legales/. HEXAOM Services est enregistré auprès de l'ORIAS en tant que Courtier en financement, Niveau 1, sous le numéro 14001345.

Contactez l'agence de Le Mans

02 43 21 93 33

    * Champs obligatoires

    Vos informations sont traitées par HEXAOM et transmises à un conseiller commercial qui vous contactera afin de répondre à votre demande. Les plans et images présentés sur notre site sont la propriété d’HEXAOM et ne peuvent pas être reproduits sans son accord. Pour retrouver notre politique de protection des données personnelles et exercer vos droits conformément à la « loi informatique et liberté » cliquez-ici.