Maison neuve à
Le Mans (72000) Référence : FH2433825_4

Prix du projet : Maison avec Terrain

prix 585 000 €

  • 8 pièces
  • 4 chambres
  • Surface maison 256 m2

VENTE d'une maison de 8 pièces (256 m²) au Mans
QUARTIER RECHERCHÉ - MAISON 8 PIÈCES NEUVE
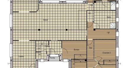
En vente : notre agence Maine Construction Le Mans est heureuse de vous proposer, dans un quartier attractif du Mans (72000), cette maison de 8 pièces de plain-pied de 256 m² et de 385 m² de terrain.
Son intérieur offre quatre chambres, une cuisine et deux salles de bains. Cette maison est neuve.
La maison se trouve dans un secteur prisé. Il y a l'École Secondaire Professionnelle Privée Usin'up Academy-le Mans et l'Institut Technologique Européen des Métiers de la Musique à moins de 10 minutes à pied, deux crèches et l'Université du Mans et l'Institut supérieur des matériaux du Mans pour le supérieur. Niveau transports, on trouve trois gares (Le Mans, Neuville-sur-Sarthe et Arnage) à moins de 10 minutes en voiture. L'autoroute A11 est accessible à 3 km. Il y a deux tennis, trois boulangeries, des commerces, un supermarché et un bureau de poste à quelques minutes à peine.
Elle est proposée à l'achat pour 585 000 €.
N'hésitez pas à prendre contact avec notre constructeur (HOUDAYER François : 06-23-38-26-90) pour tout renseignement sur le bien ou sur les modalités de vente. Maine Construction Le Mans est là pour vous accompagner à toutes les étapes de votre projet.

Mentions légales

Terrain proposé par un partenaire foncier selon disponibilités et autorisation de publicité au prix de 77 500 €. Hors droit d'enregistrement et frais de notaire. Terrain + Maison proposés au prix de 585 000 € (Hors branchements et raccordements, papiers peints, peintures, revêtement de sol dans les chambres. Tarif modifiable sans préavis). Etiquette énergie : A. Différents modèles disponibles pour ce terrain. Assurances et garanties du constructeur (RC professionnelle, décennale, dommage ouvrage, garantie de remboursement de l'acompte, livraison à prix et délai convenu) : https://www.maine-construction.fr/mentions-legales/. HEXAOM Services est enregistré auprès de l'ORIAS en tant que Courtier en financement, Niveau 1, sous le numéro 14001345.

Contactez l'agence de Le Mans

02 43 21 93 33

    * Champs obligatoires

    Vos informations sont traitées par HEXAOM et transmises à un conseiller commercial qui vous contactera afin de répondre à votre demande. Les plans et images présentés sur notre site sont la propriété d’HEXAOM et ne peuvent pas être reproduits sans son accord. Pour retrouver notre politique de protection des données personnelles et exercer vos droits conformément à la « loi informatique et liberté » cliquez-ici.