Maison neuve à
Le Mans (72000) Référence : FH2433825_14

Prix du projet : Maison avec Terrain

prix 238 000 €

  • 4 pièces
  • 3 chambres
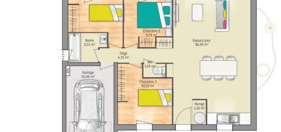
  • Surface maison 82 m2

Maison de 4 pièces (82 m²) à vendre au Mans
QUARTIER RECHERCHÉ - MAISON 4 PIÈCES NEUVE
À vendre située dans un quartier attractif du Mans (72000), nous vous présentons cette maison de 4 pièces de plain-pied de 82 m² et de 385 m² de terrain.
Conçue de plain-pied, elle propose trois chambres, une cuisine et une salle de bains. La maison est neuve.
La maison se trouve dans un secteur convoité. L'École Secondaire Professionnelle Privée Usin'up Academy-le Mans et l'Institut Technologique Européen des Métiers de la Musique sont implantés à moins de 10 minutes à pied, deux crèches, tout comme deux établissements du supérieur à quelques pas de la maison : l'Université du Mans et l'Institut supérieur des matériaux du Mans. Côté transports en commun, on trouve les gares Le Mans, Neuville-sur-Sarthe et Arnage à moins de 10 minutes en voiture. L'autoroute A11 est accessible à 3 km. Il y a deux tennis, trois boulangeries, des commerces, un supermarché et un bureau de poste à quelques minutes à peine.
Elle est proposée à l'achat pour 238 000 €.
Contactez François HOUDAYER (06-23-38-26-90) pour toute information sur la maison. Donnez vie à vos projets immobiliers avec Maine Construction Le Mans.

Mentions légales

Terrain proposé par un partenaire foncier selon disponibilités et autorisation de publicité au prix de 77 500 €. Hors droit d'enregistrement et frais de notaire. Terrain + Maison proposés au prix de 238 000 € (Hors branchements et raccordements, papiers peints, peintures, revêtement de sol dans les chambres. Tarif modifiable sans préavis). Etiquette énergie : A. Différents modèles disponibles pour ce terrain. Assurances et garanties du constructeur (RC professionnelle, décennale, dommage ouvrage, garantie de remboursement de l'acompte, livraison à prix et délai convenu) : https://www.maine-construction.fr/mentions-legales/. HEXAOM Services est enregistré auprès de l'ORIAS en tant que Courtier en financement, Niveau 1, sous le numéro 14001345.

Contactez l'agence de Le Mans

02 43 21 93 33

    * Champs obligatoires

    Vos informations sont traitées par HEXAOM et transmises à un conseiller commercial qui vous contactera afin de répondre à votre demande. Les plans et images présentés sur notre site sont la propriété d’HEXAOM et ne peuvent pas être reproduits sans son accord. Pour retrouver notre politique de protection des données personnelles et exercer vos droits conformément à la « loi informatique et liberté » cliquez-ici.