Maison neuve à
Le Mans (72000) Référence : FH2316161_8

Prix du projet : Maison avec Terrain

prix 345 000 €

  • 7 pièces
  • 3 chambres
  • Surface maison 128 m2

VENTE : maison de 7 pièces (128 m²) au Mans
IDÉALEMENT SITUÉE - MAISON 7 PIÈCES NEUVE
Maine Construction Le Mans vous présente cette maison de 7 pièces de 128 m² en vente idéalement située dans Le Mans (72000).
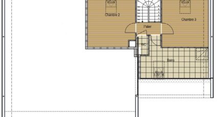
Cette maison compte 2 niveaux. Son intérieur comporte trois chambres, une cuisine et deux salles de bains. La maison est neuve.
Le terrain de la propriété est de 350 m².
La maison se trouve dans un secteur recherché. Il y a le lycée Institut Technologique Européen des Métiers de la Musique à moins de 10 minutes à pied, deux structures d'accueil pour la petite enfance et deux établissements du supérieur dans un rayon de 1 km : l'Université du Mans et l'Institut supérieur des matériaux du Mans. Niveau transports en commun, on trouve les gares Le Mans, Neuville-sur-Sarthe et Arnage à moins de 10 minutes en voiture. On trouve un accès à l'autoroute A11 à 3 km. Il y a deux tennis, trois boulangeries, des commerces, un supermarché et un bureau de poste à quelques minutes du logement.
Son prix de vente est de 345 000 €.
Contactez notre agence (HOUDAYER François : 06-23-38-26-90) pour plus d'informations sur le bien. Maine Construction Le Mans est là pour vous accompagner dans tous vos projets immobiliers.

Mentions légales

Terrain proposé par un partenaire foncier selon disponibilités et autorisation de publicité au prix de 71 500 €. Hors droit d'enregistrement et frais de notaire. Maison proposée, avec un contrat de construction de maison individuelle, dans le cadre de la loi du 19/12/1990, au prix de 273 500 € (Hors branchements et raccordements, papiers peints, peintures, revêtement de sol dans les chambres, qui sont chiffrés dans les travaux qui restent à charge du client. Tarif modifiable sans préavis). Étiquette énergie : A. Différents modèles disponibles pour ce terrain. Assurances et garanties du constructeur comprises (RC professionnelle, décennale, dommage ouvrage).

Contactez l'agence de Le Mans

02 43 21 93 33

    * Champs obligatoires

    Vos informations sont traitées par HEXAOM et transmises à un conseiller commercial qui vous contactera afin de répondre à votre demande. Les plans et images présentés sur notre site sont la propriété d’HEXAOM et ne peuvent pas être reproduits sans son accord. Pour retrouver notre politique de protection des données personnelles et exercer vos droits conformément à la « loi informatique et liberté » cliquez-ici.