Maison neuve à
Le Mans (72000) Référence : FH2316161_7

Prix du projet : Maison avec Terrain

prix 312 000 €

  • 6 pièces
  • 4 chambres
  • Surface maison 108 m2

Le Mans : maison de 6 pièces (108 m²) en vente
IDÉALEMENT SITUÉE - MAISON 6 PIÈCES NEUVE
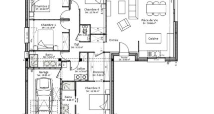
En vente idéalement située dans Le Mans (72000), nous vous proposons cette maison de 6 pièces de plain-pied de 108 m² et de 350 m² de terrain. Conçue de plain-pied, elle se divise en quatre chambres, une cuisine et deux salles de bains.
La maison est neuve.
Cette propriété est située dans un secteur prisé. Le lycée Institut Technologique Européen des Métiers de la Musique est implanté à moins de 10 minutes à pied, deux structures d'accueil pour les tout-petits, tout comme deux établissements du supérieur à proximité : l'Université du Mans et l'Institut supérieur des matériaux du Mans. Côté transports en commun, il y a trois gares (Le Mans, Neuville-sur-Sarthe et Arnage) à moins de 10 minutes en voiture. Il y a un accès à l'autoroute A11 à 3 km. On trouve deux tennis, trois boulangeries, des commerces, un supermarché et un bureau de poste à quelques minutes à peine.
Elle est proposée à l'achat pour 312 000 €.
N'hésitez pas à prendre contact avec notre agence (HOUDAYER François : 06-23-38-26-90) pour tout renseignement sur la maison ou sur les modalités de vente. Donnez vie à vos projets immobiliers avec Maine Construction Le Mans.

Mentions légales

Terrain proposé par un partenaire foncier selon disponibilités et autorisation de publicité au prix de 71 500 €. Hors droit d'enregistrement et frais de notaire. Maison proposée, avec un contrat de construction de maison individuelle, dans le cadre de la loi du 19/12/1990, au prix de 240 500 € (Hors branchements et raccordements, papiers peints, peintures, revêtement de sol dans les chambres, qui sont chiffrés dans les travaux qui restent à charge du client. Tarif modifiable sans préavis). Étiquette énergie : A. Différents modèles disponibles pour ce terrain. Assurances et garanties du constructeur comprises (RC professionnelle, décennale, dommage ouvrage).

Contactez l'agence de Le Mans

02 43 21 93 33

    * Champs obligatoires

    Vos informations sont traitées par HEXAOM et transmises à un conseiller commercial qui vous contactera afin de répondre à votre demande. Les plans et images présentés sur notre site sont la propriété d’HEXAOM et ne peuvent pas être reproduits sans son accord. Pour retrouver notre politique de protection des données personnelles et exercer vos droits conformément à la « loi informatique et liberté » cliquez-ici.