Maison neuve à
Le Mans (72000) Référence : FH2316161_12

Prix du projet : Maison avec Terrain

prix 335 000 €

  • 4 pièces
  • 3 chambres
  • Surface maison 125 m2

VENTE : maison de 4 pièces (125 m²) au Mans
IDÉALEMENT SITUÉE - MAISON 4 PIÈCES NEUVE
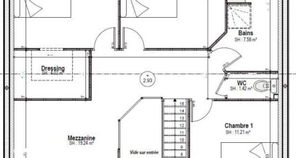
Maine Construction Le Mans vous propose cette maison de 4 pièces de 125 m² idéalement située dans Le Mans (72000). Elle propose trois chambres, une cuisine et une salle de bains.
Le terrain de cette maison est de 350 m².
C'est une maison de 2 niveaux. Elle est neuve.
La propriété se situe dans un quartier convoité. Il y a le lycée Institut Technologique Européen des Métiers de la Musique à moins de 10 minutes à pied, deux structures d'accueil pour la petite enfance et l'Université du Mans et l'Institut supérieur des matériaux du Mans pour le supérieur. Côté transports, on trouve trois gares (Le Mans, Neuville-sur-Sarthe et Arnage) à moins de 10 minutes en voiture. On trouve un accès à l'autoroute A11 à 3 km. Il y a deux tennis, trois boulangeries, des commerces, un supermarché et un bureau de poste à proximité de la maison.
Elle est proposée à l'achat pour 335 000 €.
Contactez notre agence (HOUDAYER François : 06-23-38-26-90) pour toute information sur la maison ou sur les démarches à suivre.

Mentions légales

Terrain proposé par un partenaire foncier selon disponibilités et autorisation de publicité au prix de 71 500 €. Hors droit d'enregistrement et frais de notaire. Maison proposée, avec un contrat de construction de maison individuelle, dans le cadre de la loi du 19/12/1990, au prix de 263 500 € (Hors branchements et raccordements, papiers peints, peintures, revêtement de sol dans les chambres, qui sont chiffrés dans les travaux qui restent à charge du client. Tarif modifiable sans préavis). Étiquette énergie : A. Différents modèles disponibles pour ce terrain. Assurances et garanties du constructeur comprises (RC professionnelle, décennale, dommage ouvrage).

Contactez l'agence de Le Mans

02 43 21 93 33

    * Champs obligatoires

    Vos informations sont traitées par HEXAOM et transmises à un conseiller commercial qui vous contactera afin de répondre à votre demande. Les plans et images présentés sur notre site sont la propriété d’HEXAOM et ne peuvent pas être reproduits sans son accord. Pour retrouver notre politique de protection des données personnelles et exercer vos droits conformément à la « loi informatique et liberté » cliquez-ici.