Maison neuve à
Lavernat (72500) Référence : LL2453442_6

Prix du projet : Maison avec Terrain

prix 229 000 €

  • 5 pièces
  • 3 chambres
  • Surface maison 100 m2

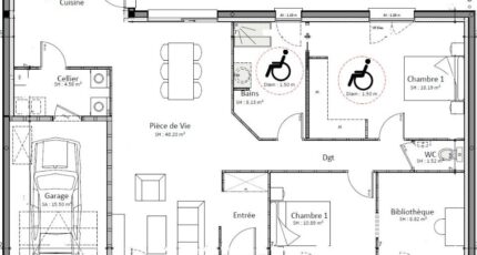
Maison de 5 pièces (100 m²) à vendre à Lavernat
IDÉALEMENT SITUÉE - MAISON 5 PIÈCES NEUVE
À vendre : laissez vous charmer par, idéalement située dans Lavernat (72500), cette maison de 5 pièces de plain-pied de 100 m². Son intérieur se divise en trois chambres, une cuisine et une salle de bains.
Le terrain de la propriété s'étend sur 699 m².
La maison est neuve.
La maison se trouve dans un secteur attractif. Il y a des établissements scolaires de tous types à moins de 10 minutes en voiture, tout comme deux crèches à moins de 10 minutes à pied. Côté transports, on trouve quatre gares à moins de 10 minutes en voiture. Il y a un accès à l'autoroute A28 à 4 km. Il y a des bibliothèques, des tennis, deux bassins de natation, des commerces, des boucheries-charcuteries, deux bureaux de poste, une supérette et deux épiceries dans les environs. Ne manquez pas le marché Place de l'H“te de Ville chaque samedi matin.
Elle est proposée à l'achat pour 229 000 €.
Prenez contact avec Maine Construction Le Mans, Luc LIVET pour obtenir de plus amples renseignements sur la maison, sur les modalités de vente ou sur les démarches à suivre.

Mentions légales

Terrain proposé par un partenaire foncier selon disponibilités et autorisation de publicité au prix de 20 600 €. Hors droit d'enregistrement et frais de notaire. Terrain + Maison proposés au prix de 229 000 € (Hors branchements et raccordements, papiers peints, peintures, revêtement de sol dans les chambres. Tarif modifiable sans préavis). Etiquette énergie : A. Différents modèles disponibles pour ce terrain. Assurances et garanties du constructeur (RC professionnelle, décennale, dommage ouvrage, garantie de remboursement de l'acompte, livraison à prix et délai convenu) : https://www.maine-construction.fr/mentions-legales/. HEXAOM Services est enregistré auprès de l'ORIAS en tant que Courtier en financement, Niveau 1, sous le numéro 14001345.

Contactez l'agence de Le Mans

02 43 21 93 33

    * Champs obligatoires

    Vos informations sont traitées par HEXAOM et transmises à un conseiller commercial qui vous contactera afin de répondre à votre demande. Les plans et images présentés sur notre site sont la propriété d’HEXAOM et ne peuvent pas être reproduits sans son accord. Pour retrouver notre politique de protection des données personnelles et exercer vos droits conformément à la « loi informatique et liberté » cliquez-ici.