Maison neuve à
Lavernat (72500) Référence : LL2453442_5

Prix du projet : Maison avec Terrain

prix 349 000 €

  • 8 pièces
  • 5 chambres
  • Surface maison 154 m2

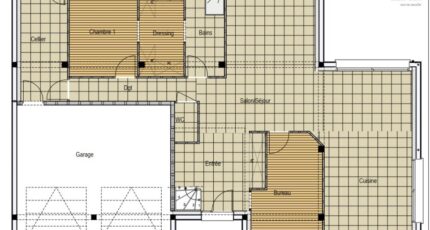
VENTE : maison de 8 pièces (154 m²) à Lavernat
IDÉALEMENT SITUÉE - MAISON 8 PIÈCES NEUVE
En vente idéalement située dans Lavernat (72500), nous vous présentons cette maison de 8 pièces de 154 m² et de 699 m² de terrain. Son intérieur offre cinq chambres, une cuisine et deux salles de bains.
Il s'agit d'une maison de 2 niveaux. Elle est neuve.
La maison est située dans un quartier recherché. Il y a des établissements scolaires du primaire et du secondaire à moins de 10 minutes en voiture, tout comme deux structures d'accueil pour les enfants en bas âge à moins de 10 minutes à pied. Côté transports, on trouve quatre gares à moins de 10 minutes en voiture. L'autoroute A28 est accessible à 4 km. Il y a des bibliothèques, des tennis, deux bassins de natation, des commerces, deux bureaux de poste, deux épiceries, une supérette et des boucheries-charcuteries à proximité du logement. Ne manquez pas le marché Place de l'H“te de Ville tous les samedis matin.
Elle est à vendre pour la somme de 349 000 €.
N'hésitez pas à prendre contact avec Luc LIVET pour obtenir de plus amples informations sur la maison. Maine Construction Le Mans vous accompagne dans tous vos projets immobiliers et dans toutes vos démarches.

Mentions légales

Terrain proposé par un partenaire foncier selon disponibilités et autorisation de publicité au prix de 20 600 €. Hors droit d'enregistrement et frais de notaire. Terrain + Maison proposés au prix de 349 000 € (Hors branchements et raccordements, papiers peints, peintures, revêtement de sol dans les chambres. Tarif modifiable sans préavis). Etiquette énergie : A. Différents modèles disponibles pour ce terrain. Assurances et garanties du constructeur (RC professionnelle, décennale, dommage ouvrage, garantie de remboursement de l'acompte, livraison à prix et délai convenu) : https://www.maine-construction.fr/mentions-legales/. HEXAOM Services est enregistré auprès de l'ORIAS en tant que Courtier en financement, Niveau 1, sous le numéro 14001345.

Contactez l'agence de Le Mans

02 43 21 93 33

    * Champs obligatoires

    Vos informations sont traitées par HEXAOM et transmises à un conseiller commercial qui vous contactera afin de répondre à votre demande. Les plans et images présentés sur notre site sont la propriété d’HEXAOM et ne peuvent pas être reproduits sans son accord. Pour retrouver notre politique de protection des données personnelles et exercer vos droits conformément à la « loi informatique et liberté » cliquez-ici.