Maison neuve à
Lavernat (72500) Référence : LL2453442_2

Prix du projet : Maison avec Terrain

prix 209 000 €

  • 6 pièces
  • 2 chambres
  • Surface maison 88 m2

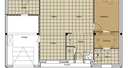
Maison de 6 pièces (88 m²) en vente à Lavernat
IDÉALEMENT SITUÉE - MAISON 6 PIÈCES NEUVE
En vente : Maine Construction Le Mans vous propose, idéalement située dans Lavernat (72500), cette maison de 6 pièces de 88 m² et de 699 m² de terrain.
Cette maison compte 2 niveaux. Elle offre deux chambres, une cuisine et deux salles de bains. Cette maison est neuve.
La propriété se trouve dans un quartier attractif. Il y a des établissements scolaires de tous niveaux (de la maternelle au lycée) à moins de 10 minutes en voiture, tout comme deux structures d'accueil pour les enfants en bas âge à moins de 10 minutes à pied. Niveau transports en commun, on trouve quatre gares à moins de 10 minutes en voiture. On trouve un accès à l'autoroute A28 à 4 km. Il y a des bibliothèques, des tennis, deux bassins de natation, des commerces, des boucheries-charcuteries, deux bureaux de poste, deux épiceries et une supérette à quelques minutes à peine. Le marché Place de l'H“te de Ville anime le quartier tous les samedis matin.
Elle est à vendre pour la somme de 209 000 €.
N'hésitez pas à prendre contact avec Luc LIVET pour plus de renseignements sur la maison. Concrétisez vos projets immobiliers avec Maine Construction Le Mans.

Mentions légales

Terrain proposé par un partenaire foncier selon disponibilités et autorisation de publicité au prix de 20 600 €. Hors droit d'enregistrement et frais de notaire. Terrain + Maison proposés au prix de 209 000 € (Hors branchements et raccordements, papiers peints, peintures, revêtement de sol dans les chambres. Tarif modifiable sans préavis). Etiquette énergie : A. Différents modèles disponibles pour ce terrain. Assurances et garanties du constructeur (RC professionnelle, décennale, dommage ouvrage, garantie de remboursement de l'acompte, livraison à prix et délai convenu) : https://www.maine-construction.fr/mentions-legales/. HEXAOM Services est enregistré auprès de l'ORIAS en tant que Courtier en financement, Niveau 1, sous le numéro 14001345.

Contactez l'agence de Le Mans

02 43 21 93 33

    * Champs obligatoires

    Vos informations sont traitées par HEXAOM et transmises à un conseiller commercial qui vous contactera afin de répondre à votre demande. Les plans et images présentés sur notre site sont la propriété d’HEXAOM et ne peuvent pas être reproduits sans son accord. Pour retrouver notre politique de protection des données personnelles et exercer vos droits conformément à la « loi informatique et liberté » cliquez-ici.