Maison neuve à
Laigné-en-Belin (72220) Référence : FH2436620_9

Prix du projet : Maison avec Terrain

prix 238 000 €

  • 4 pièces
  • 3 chambres
  • Surface maison 87 m2

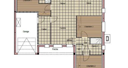
VENTE : maison F4 (87 m²) à Laigné-en-Belin
IDÉALEMENT SITUÉE - MAISON 4 PIÈCES NEUVE
À 13 km du Mans, venez découvrir cette maison de 4 pièces de plain-pied de 87 m² et de 650 m² de terrain idéalement située dans Laigné-en-Belin (72220). Son intérieur inclut trois chambres, une cuisine et deux salles de bains.
La maison est neuve.
Cette maison se trouve dans un secteur prisé. Cinq établissements scolaires sont implantés à moins de 10 minutes à pied. Niveau transports, il y a la gare Laigné-Saint-Gervais dans un rayon de 1 km. On trouve un tennis, trois commerces, trois boulangeries, un supermarché et une boucherie-charcuterie à quelques minutes à peine.
Elle est proposée à l'achat pour 238 000 €.
Contactez notre agence (François HOUDAYER : 06-23-38-26-90) pour toute information sur la propriété ou sur les modalités de vente. Maine Construction Le Mans est là pour vous accompagner dans toutes vos démarches.

Mentions légales

Terrain proposé par un partenaire foncier selon disponibilités et autorisation de publicité au prix de 68 000 €. Hors droit d'enregistrement et frais de notaire. Terrain + Maison proposés au prix de 238 000 € (Hors branchements et raccordements, papiers peints, peintures, revêtement de sol dans les chambres. Tarif modifiable sans préavis). Etiquette énergie : A. Différents modèles disponibles pour ce terrain. Assurances et garanties du constructeur (RC professionnelle, décennale, dommage ouvrage, garantie de remboursement de l'acompte, livraison à prix et délai convenu) : https://www.maine-construction.fr/mentions-legales/. HEXAOM Services est enregistré auprès de l'ORIAS en tant que Courtier en financement, Niveau 1, sous le numéro 14001345.

Contactez l'agence de Le Mans

02 43 21 93 33

    * Champs obligatoires

    Vos informations sont traitées par HEXAOM et transmises à un conseiller commercial qui vous contactera afin de répondre à votre demande. Les plans et images présentés sur notre site sont la propriété d’HEXAOM et ne peuvent pas être reproduits sans son accord. Pour retrouver notre politique de protection des données personnelles et exercer vos droits conformément à la « loi informatique et liberté » cliquez-ici.