Maison neuve à
Laigné-en-Belin (72220) Référence : FH2402864_5

Prix du projet : Maison avec Terrain

prix 335 000 €

  • 6 pièces
  • 3 chambres
  • Surface maison 128 m2

Laigné-en-Belin : maison de 6 pièces (128 m²) à vendre
PROCHE GARE - MAISON 6 PIÈCES NEUVE
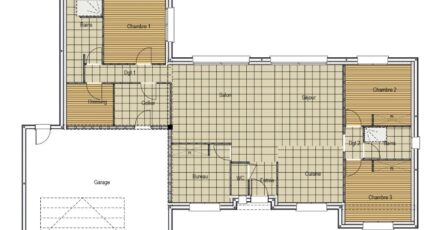
En vente : à quelques kilomètres du Mans, proche de la gare de Laigné-en-Belin (72220), nous vous proposons cette maison de 6 pièces de plain-pied de 128 m² et de 1 676 m² de terrain. Elle inclut trois chambres, une cuisine et deux salles de bains.
Cette maison est neuve.
L'École Primaire Publique Jean-Baptiste Galan et le Lycée Agricole Privé les Horizons-Site de Saint Gervais se trouvent à moins de 10 minutes à pied. Niveau transports, il y a la gare Laigné-Saint-Gervais à quelques pas de la maison. Il y a un accès à l'autoroute A28 à 9 km. On trouve un tennis, trois commerces, trois boulangeries, un supermarché et une boucherie-charcuterie à quelques minutes.
Elle est à vendre pour la somme de 335 000 €.
N'hésitez pas à prendre contact avec François HOUDAYER (tél : 06-23-38-26-90) pour tout renseignement sur la maison.

Mentions légales

Terrain proposé par un partenaire foncier selon disponibilités et autorisation de publicité au prix de 69 900 €. Hors droit d'enregistrement et frais de notaire. Terrain + Maison proposés au prix de 335 000 € (Hors branchements et raccordements, papiers peints, peintures, revêtement de sol dans les chambres. Tarif modifiable sans préavis). Etiquette énergie : A. Différents modèles disponibles pour ce terrain. Assurances et garanties du constructeur (RC professionnelle, décennale, dommage ouvrage, garantie de remboursement de l'acompte, livraison à prix et délai convenu) : https://www.maine-construction.fr/mentions-legales/. HEXAOM Services est enregistré auprès de l'ORIAS en tant que Courtier en financement, Niveau 1, sous le numéro 14001345.

Contactez l'agence de Le Mans

02 43 21 93 33

    * Champs obligatoires

    Vos informations sont traitées par HEXAOM et transmises à un conseiller commercial qui vous contactera afin de répondre à votre demande. Les plans et images présentés sur notre site sont la propriété d’HEXAOM et ne peuvent pas être reproduits sans son accord. Pour retrouver notre politique de protection des données personnelles et exercer vos droits conformément à la « loi informatique et liberté » cliquez-ici.