Maison neuve à
Laigné-en-Belin (72220) Référence : FH2402864_2

Prix du projet : Maison avec Terrain

prix 315 000 €

  • 5 pièces
  • 4 chambres
  • Surface maison 104 m2

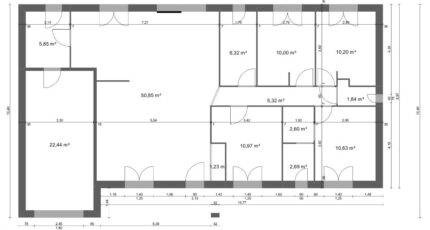
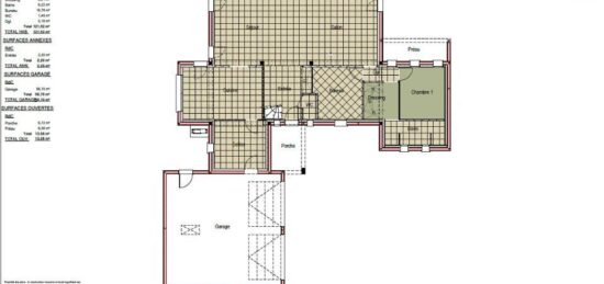
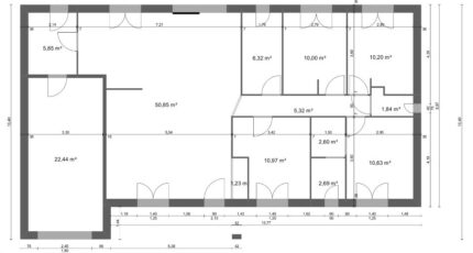
Maison de 5 pièces (104 m²) en vente à Laigné-en-Belin
PROCHE GARE - MAISON 5 PIÈCES NEUVE
À 13 km du Mans, notre agence Maine Construction Le Mans est ravie de vous présenter cette maison de 5 pièces de plain-pied de 104 m² dans Laigné-en-Belin (72220), proche de la gare. Conçue de plain-pied, elle compte quatre chambres, une cuisine et une salle de bains.
Le terrain du bien s'étend sur 1 676 m².
Cette maison est neuve.
On trouve l'École Primaire Publique Jean-Baptiste Galan et le Lycée Agricole Privé les Horizons-Site de Saint Gervais à moins de 10 minutes à pied. Niveau transports en commun, il y a la gare Laigné-Saint-Gervais dans un rayon de 1 km. On trouve un accès à l'autoroute A28 à 9 km. On trouve un tennis, trois commerces, trois boulangeries, un supermarché et une boucherie-charcuterie à quelques minutes à peine.
Elle est proposée à l'achat pour 315 000 €.
N'hésitez pas à prendre contact avec notre constructeur (François HOUDAYER : 06-23-38-26-90) pour toute information sur la maison, sur les démarches à suivre ou sur les modalités de vente. Concrétisez vos projets immobiliers avec Maine Construction Le Mans.

Mentions légales

Terrain proposé par un partenaire foncier selon disponibilités et autorisation de publicité au prix de 69 900 €. Hors droit d'enregistrement et frais de notaire. Terrain + Maison proposés au prix de 315 000 € (Hors branchements et raccordements, papiers peints, peintures, revêtement de sol dans les chambres. Tarif modifiable sans préavis). Etiquette énergie : A. Différents modèles disponibles pour ce terrain. Assurances et garanties du constructeur (RC professionnelle, décennale, dommage ouvrage, garantie de remboursement de l'acompte, livraison à prix et délai convenu) : https://www.maine-construction.fr/mentions-legales/. HEXAOM Services est enregistré auprès de l'ORIAS en tant que Courtier en financement, Niveau 1, sous le numéro 14001345.

Contactez l'agence de Le Mans

02 43 21 93 33

    * Champs obligatoires

    Vos informations sont traitées par HEXAOM et transmises à un conseiller commercial qui vous contactera afin de répondre à votre demande. Les plans et images présentés sur notre site sont la propriété d’HEXAOM et ne peuvent pas être reproduits sans son accord. Pour retrouver notre politique de protection des données personnelles et exercer vos droits conformément à la « loi informatique et liberté » cliquez-ici.