Maison neuve à
Laigné-en-Belin (72220) Référence : FH2402864_14

Prix du projet : Maison avec Terrain

prix 279 000 €

  • 5 pièces
  • 4 chambres
  • Surface maison 92 m2

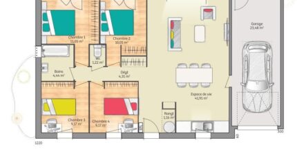
Maison de 5 pièces (92 m²) à vendre à Laigné-en-Belin
PROCHE GARE - MAISON 5 PIÈCES NEUVE
En vente à quelques kilomètres du Mans, votre agence Maine Construction Le Mans est ravie de vous proposer, proche de la gare de Laigné-en-Belin (72220), cette maison de 5 pièces de plain-pied de 92 m² et de 1 676 m² de terrain. Conçue de plain-pied, elle propose quatre chambres, une cuisine et une salle de bains.
La maison est neuve.
L'École Primaire Publique Jean-Baptiste Galan et le Lycée Agricole Privé les Horizons-Site de Saint Gervais se trouvent à moins de 10 minutes à pied. Niveau transports, il y a la gare Laigné-Saint-Gervais dans un rayon de 1 km. L'autoroute A28 est accessible à 9 km. On trouve un tennis, trois commerces, trois boulangeries, un supermarché et une boucherie-charcuterie à quelques minutes.
Elle est à vendre pour la somme de 279 000 €.
N'hésitez pas à prendre contact avec notre constructeur (François HOUDAYER : 06-23-38-26-90) pour toute question sur la maison, sur les démarches à suivre ou sur les modalités de vente. Maine Construction Le Mans vous accompagne dans tous vos projets immobiliers et à toutes les étapes de l'achat.

Mentions légales

Terrain proposé par un partenaire foncier selon disponibilités et autorisation de publicité au prix de 69 900 €. Hors droit d'enregistrement et frais de notaire. Terrain + Maison proposés au prix de 279 000 € (Hors branchements et raccordements, papiers peints, peintures, revêtement de sol dans les chambres. Tarif modifiable sans préavis). Etiquette énergie : A. Différents modèles disponibles pour ce terrain. Assurances et garanties du constructeur (RC professionnelle, décennale, dommage ouvrage, garantie de remboursement de l'acompte, livraison à prix et délai convenu) : https://www.maine-construction.fr/mentions-legales/. HEXAOM Services est enregistré auprès de l'ORIAS en tant que Courtier en financement, Niveau 1, sous le numéro 14001345.

Contactez l'agence de Le Mans

02 43 21 93 33

    * Champs obligatoires

    Vos informations sont traitées par HEXAOM et transmises à un conseiller commercial qui vous contactera afin de répondre à votre demande. Les plans et images présentés sur notre site sont la propriété d’HEXAOM et ne peuvent pas être reproduits sans son accord. Pour retrouver notre politique de protection des données personnelles et exercer vos droits conformément à la « loi informatique et liberté » cliquez-ici.