Maison neuve à
Laigné-en-Belin (72220) Référence : FH2402864_12

Prix du projet : Maison avec Terrain

prix 275 000 €

  • 4 pièces
  • 3 chambres
  • Surface maison 90 m2

VENTE : maison de 4 pièces (90 m²) à Laigné-en-Belin
PROCHE GARE - MAISON 4 PIÈCES NEUVE
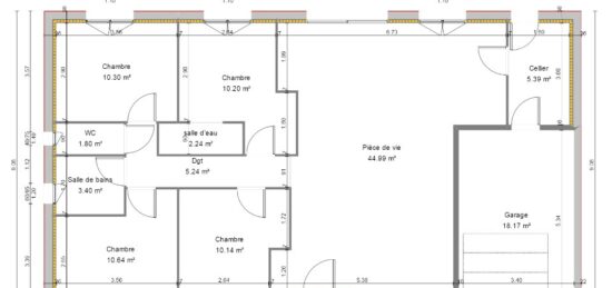
À vendre : située à quelques kilomètres du Mans, proche de la gare de Laigné-en-Belin (72220), nous vous proposons cette maison de 4 pièces de 90 m² et de 1 676 m² de terrain.
Il s'agit d'une maison de 2 niveaux. Elle propose trois chambres, une cuisine et une salle de bains. La maison est neuve.
L'École Primaire Publique Jean-Baptiste Galan et le Lycée Agricole Privé les Horizons-Site de Saint Gervais sont implantés à moins de 10 minutes à pied. Côté transports en commun, on trouve la gare Laigné-Saint-Gervais à quelques pas de la maison. L'autoroute A28 est accessible à 9 km. Il y a un tennis, trois commerces, trois boulangeries, un supermarché et une boucherie-charcuterie à quelques minutes de la maison.
Elle est à vendre pour la somme de 275 000 €.
Contactez notre agence (François HOUDAYER : 06-23-38-26-90) pour obtenir de plus amples informations sur le bien. Faites de vos projets immobiliers une réalité avec Maine Construction Le Mans.

Mentions légales

Terrain proposé par un partenaire foncier selon disponibilités et autorisation de publicité au prix de 69 900 €. Hors droit d'enregistrement et frais de notaire. Terrain + Maison proposés au prix de 275 000 € (Hors branchements et raccordements, papiers peints, peintures, revêtement de sol dans les chambres. Tarif modifiable sans préavis). Etiquette énergie : A. Différents modèles disponibles pour ce terrain. Assurances et garanties du constructeur (RC professionnelle, décennale, dommage ouvrage, garantie de remboursement de l'acompte, livraison à prix et délai convenu) : https://www.maine-construction.fr/mentions-legales/. HEXAOM Services est enregistré auprès de l'ORIAS en tant que Courtier en financement, Niveau 1, sous le numéro 14001345.

Contactez l'agence de Le Mans

02 43 21 93 33

    * Champs obligatoires

    Vos informations sont traitées par HEXAOM et transmises à un conseiller commercial qui vous contactera afin de répondre à votre demande. Les plans et images présentés sur notre site sont la propriété d’HEXAOM et ne peuvent pas être reproduits sans son accord. Pour retrouver notre politique de protection des données personnelles et exercer vos droits conformément à la « loi informatique et liberté » cliquez-ici.