Maison neuve à
Laigné-en-Belin (72220) Référence : FH2402864_1

Prix du projet : Maison avec Terrain

prix 295 000 €

  • 6 pièces
  • 3 chambres
  • Surface maison 99 m2

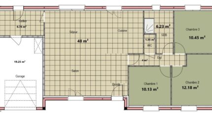
Maison F6 (99 m²) en vente à Laigné-en-Belin
PROCHE GARE - MAISON 6 PIÈCES NEUVE
À vendre à 13 km du Mans, proche de la gare de Laigné-en-Belin (72220), Maine Construction Le Mans vous propose cette maison de 6 pièces de plain-pied de 99 m². Elle est composée de trois chambres, d'une cuisine et d'une salle de bains.
Le terrain du bien est de 1 676 m².
Cette maison est neuve.
Il y a l'École Primaire Publique Jean-Baptiste Galan et le Lycée Agricole Privé les Horizons-Site de Saint Gervais à moins de 10 minutes à pied. Niveau transports en commun, on trouve la gare Laigné-Saint-Gervais juste à côté. Il y a un accès à l'autoroute A28 à 9 km. Il y a un tennis, trois commerces, trois boulangeries, un supermarché et une boucherie-charcuterie à proximité.
Son prix de vente est de 295 000 €.
Contactez notre agence (François HOUDAYER : 06-23-38-26-90) pour toute information sur la maison, sur les démarches à suivre ou sur les modalités de vente. Concrétisez vos projets immobiliers avec Maine Construction Le Mans.

Mentions légales

Terrain proposé par un partenaire foncier selon disponibilités et autorisation de publicité au prix de 69 900 €. Hors droit d'enregistrement et frais de notaire. Terrain + Maison proposés au prix de 295 000 € (Hors branchements et raccordements, papiers peints, peintures, revêtement de sol dans les chambres. Tarif modifiable sans préavis). Etiquette énergie : A. Différents modèles disponibles pour ce terrain. Assurances et garanties du constructeur (RC professionnelle, décennale, dommage ouvrage, garantie de remboursement de l'acompte, livraison à prix et délai convenu) : https://www.maine-construction.fr/mentions-legales/. HEXAOM Services est enregistré auprès de l'ORIAS en tant que Courtier en financement, Niveau 1, sous le numéro 14001345.

Contactez l'agence de Le Mans

02 43 21 93 33

    * Champs obligatoires

    Vos informations sont traitées par HEXAOM et transmises à un conseiller commercial qui vous contactera afin de répondre à votre demande. Les plans et images présentés sur notre site sont la propriété d’HEXAOM et ne peuvent pas être reproduits sans son accord. Pour retrouver notre politique de protection des données personnelles et exercer vos droits conformément à la « loi informatique et liberté » cliquez-ici.