Maison neuve à
La Suze-sur-Sarthe (72210) Référence : FH2468959_14

Prix du projet : Maison avec Terrain

prix 285 000 €

  • 4 pièces
  • 3 chambres
  • Surface maison 108 m2

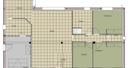
VENTE : maison F4 (108 m²) à La Suze-sur-Sarthe
IDÉALEMENT SITUÉE - MAISON 4 PIÈCES NEUVE
En vente à quelques kilomètres du Mans, votre agence Maine Construction Le Mans est heureuse de vous présenter cette maison de 4 pièces de plain-pied de 108 m² et de 1 516 m² de terrain, idéalement située dans La Suze-sur-Sarthe (72210).
Son intérieur inclut trois chambres, une cuisine et une salle de bains. Cette maison est neuve.
Le bien se trouve dans un secteur recherché. Il y a quatre établissements scolaires à moins de 10 minutes à pied. Niveau transports, on trouve la gare La Suze-sur-Sarthe à proximité. On trouve un accès à l'autoroute A11 à 9 km. Il y a un port de plaisance, un bassin de natation, deux tennis, trois commerces, un bureau de poste, une supérette et deux boucheries-charcuteries à quelques minutes à peine. Le marché Place de la Gare anime les environs chaque jeudi matin.
Il est proposé à l'achat pour 285 000 €.
Contactez François HOUDAYER (06-23-38-26-90) pour tout renseignement sur la maison, sur les démarches à suivre ou sur les modalités de vente. Concrétisez vos projets immobiliers avec Maine Construction Le Mans.

Mentions légales

Terrain proposé par un partenaire foncier selon disponibilités et autorisation de publicité au prix de 56 708 €. Hors droit d'enregistrement et frais de notaire. Terrain + Maison proposés au prix de 285 000 € (Hors branchements et raccordements, papiers peints, peintures, revêtement de sol dans les chambres. Tarif modifiable sans préavis). Etiquette énergie : A. Différents modèles disponibles pour ce terrain. Assurances et garanties du constructeur (RC professionnelle, décennale, dommage ouvrage, garantie de remboursement de l'acompte, livraison à prix et délai convenu) : https://www.maine-construction.fr/mentions-legales/. HEXAOM Services est enregistré auprès de l'ORIAS en tant que Courtier en financement, Niveau 1, sous le numéro 14001345.

Contactez l'agence de Le Mans

02 43 21 93 33

    * Champs obligatoires

    Vos informations sont traitées par HEXAOM et transmises à un conseiller commercial qui vous contactera afin de répondre à votre demande. Les plans et images présentés sur notre site sont la propriété d’HEXAOM et ne peuvent pas être reproduits sans son accord. Pour retrouver notre politique de protection des données personnelles et exercer vos droits conformément à la « loi informatique et liberté » cliquez-ici.