Maison neuve à
La Guierche (72380) Référence : LL2312344_5

Prix du projet : Maison avec Terrain

prix 294 000 €

  • 4 pièces
  • 4 chambres
  • Surface maison 115 m2

VENTE d'une maison F4 (115 m²) à La Guierche
IDÉALEMENT SITUÉE - MAISON 4 PIÈCES NEUVE
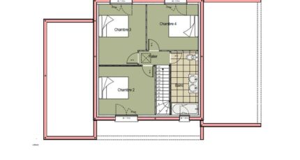
À proximité de la gare, votre agence Maine Construction Saint-Saturnin est ravie de vous proposer à vendre, idéalement située dans La Guierche (72380), cette maison de 4 pièces de 115 m². Son intérieur comporte quatre chambres, une cuisine et deux salles de bains.
Le terrain de la propriété s'étend sur 428 m².
Cette maison possède 2 niveaux. Elle est neuve.
La maison est située dans un quartier attractif. L'École Primaire Publique Robert Doisneau se trouve à moins de 10 minutes à pied, tout comme une crèche. Niveau transports en commun, il y a la gare La Guierche dans un rayon de 1 km. Les autoroutes A11 et A28 sont accessibles à moins de 9 km et Le Mans se situe à 15 km. On trouve un tennis, une bibliothèque, une boulangerie et un commerce à proximité.
Son prix de vente est de 294 000 €.
N'hésitez pas à prendre contact avec Luc LIVET (07-77-76-37-30) pour tout renseignement sur la maison. Concrétisez vos projets immobiliers avec Maine Construction Saint-Saturnin.

Mentions légales

Terrain proposé par un partenaire foncier selon disponibilités et autorisation de publicité au prix de 52 500 €. Hors droit d'enregistrement et frais de notaire. Maison proposée, avec un contrat de construction de maison individuelle, dans le cadre de la loi du 19/12/1990, au prix de 241 500 € (Hors branchements et raccordements, papiers peints, peintures, revêtement de sol dans les chambres, qui sont chiffrés dans les travaux qui restent à charge du client. Tarif modifiable sans préavis). Étiquette énergie : A. Différents modèles disponibles pour ce terrain. Assurances et garanties du constructeur comprises (RC professionnelle, décennale, dommage ouvrage).

Contactez l'agence de Le Mans

02 43 21 93 33

    * Champs obligatoires

    Vos informations sont traitées par HEXAOM et transmises à un conseiller commercial qui vous contactera afin de répondre à votre demande. Les plans et images présentés sur notre site sont la propriété d’HEXAOM et ne peuvent pas être reproduits sans son accord. Pour retrouver notre politique de protection des données personnelles et exercer vos droits conformément à la « loi informatique et liberté » cliquez-ici.