Maison neuve à
La Ferté-Bernard (72400) Référence : LL2325684_4

Prix du projet : Maison avec Terrain

prix 244 000 €

  • 4 pièces
  • 3 chambres
  • Surface maison 96 m2

La Ferté-Bernard : maison T4 (96 m²) en vente
PROCHE GARE - MAISON 4 PIÈCES NEUVE
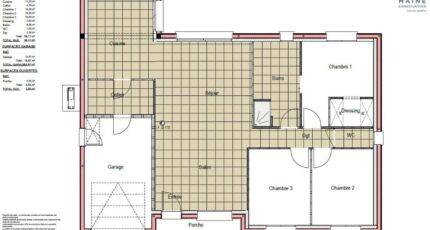
Notre agence Maine Construction Le Mans est heureuse de vous proposer cette maison de 4 pièces de plain-pied de 96 m² et de 416 m² de terrain en vente, dans La Ferté-Bernard (72400), proche de la gare.
Conçue de plain-pied, elle comporte trois chambres, une cuisine et une salle de bains. Cette maison est neuve.
Il y a des écoles de tous types à moins de 10 minutes à pied, tout comme une structure d'accueil pour les enfants en bas âge. Niveau transports, on trouve la gare La Ferté-Bernard juste à côté. L'autoroute A11 est accessible à 5 km. Il y a deux bassins de natation, deux tennis, un bowling, des commerces, des boulangeries, un bureau de poste, deux boucheries-charcuteries et trois épiceries à quelques minutes de la maison. Ne manquez pas le marché Place Saint Antoine tous les samedis matin.
Il est proposé à l'achat pour 244 000 €.
N'hésitez pas à prendre contact avec Luc LIVET (07-77-76-37-30) Maine Construction Le Mans pour toute information sur la maison, sur les démarches à suivre ou sur les modalités de vente.

Mentions légales

Terrain proposé par un partenaire foncier selon disponibilités et autorisation de publicité au prix de 43 600 €. Hors droit d'enregistrement et frais de notaire. Maison proposée, avec un contrat de construction de maison individuelle, dans le cadre de la loi du 19/12/1990, au prix de 200 400 € (Hors branchements et raccordements, papiers peints, peintures, revêtement de sol dans les chambres, qui sont chiffrés dans les travaux qui restent à charge du client. Tarif modifiable sans préavis). Étiquette énergie : A. Différents modèles disponibles pour ce terrain. Assurances et garanties du constructeur comprises (RC professionnelle, décennale, dommage ouvrage).

Contactez l'agence de Le Mans

02 43 21 93 33

    * Champs obligatoires

    Vos informations sont traitées par HEXAOM et transmises à un conseiller commercial qui vous contactera afin de répondre à votre demande. Les plans et images présentés sur notre site sont la propriété d’HEXAOM et ne peuvent pas être reproduits sans son accord. Pour retrouver notre politique de protection des données personnelles et exercer vos droits conformément à la « loi informatique et liberté » cliquez-ici.