Maison neuve à
Guécélard (72230) Référence : FH2446364_8

Prix du projet : Maison avec Terrain

prix 295 000 €

  • 5 pièces
  • 4 chambres
  • Surface maison 116 m2

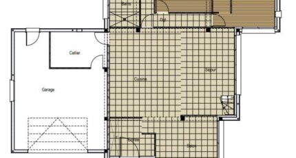
VENTE d'une maison T5 (116 m²) à Guécélard
IDÉALEMENT SITUÉE - MAISON 5 PIÈCES NEUVE
À vendre : située à 12 km du Mans, nous vous proposons cette maison de 5 pièces de 116 m² idéalement située dans Guécélard (72230).
Cette maison compte 2 niveaux. Elle se divise en quatre chambres, une cuisine et deux salles de bains. Cette maison est neuve.
Le terrain de la propriété est de 650 m².
La propriété se trouve dans un secteur attractif. Il y a l'École Primaire Publique René Cassin à moins de 10 minutes à pied. Niveau transports, on trouve quatre gares à moins de 10 minutes en voiture. Il y a un tennis et deux commerces dans les environs.
Son prix de vente est de 295 000 €.
Contactez François HOUDAYER (06-23-38-26-90) pour obtenir de plus amples informations sur la maison, sur les modalités de vente ou sur les démarches à suivre. Faites de vos projets immobiliers une réalité avec Maine Construction Le Mans.

Mentions légales

Terrain proposé par un partenaire foncier selon disponibilités et autorisation de publicité au prix de 57 500 €. Hors droit d'enregistrement et frais de notaire. Terrain + Maison proposés au prix de 295 000 € (Hors branchements et raccordements, papiers peints, peintures, revêtement de sol dans les chambres. Tarif modifiable sans préavis). Etiquette énergie : A. Différents modèles disponibles pour ce terrain. Assurances et garanties du constructeur (RC professionnelle, décennale, dommage ouvrage, garantie de remboursement de l'acompte, livraison à prix et délai convenu) : https://www.maine-construction.fr/mentions-legales/. HEXAOM Services est enregistré auprès de l'ORIAS en tant que Courtier en financement, Niveau 1, sous le numéro 14001345.

Contactez l'agence de Le Mans

02 43 21 93 33

    * Champs obligatoires

    Vos informations sont traitées par HEXAOM et transmises à un conseiller commercial qui vous contactera afin de répondre à votre demande. Les plans et images présentés sur notre site sont la propriété d’HEXAOM et ne peuvent pas être reproduits sans son accord. Pour retrouver notre politique de protection des données personnelles et exercer vos droits conformément à la « loi informatique et liberté » cliquez-ici.