Maison neuve à
Guécélard (72230) Référence : FH2446364_12

Prix du projet : Maison avec Terrain

prix 289 000 €

  • 6 pièces
  • 4 chambres
  • Surface maison 105 m2

Guécélard : maison de 6 pièces (105 m²) à vendre
IDÉALEMENT SITUÉE - MAISON 6 PIÈCES NEUVE
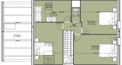
En vente : située à 12 km du Mans, nous sommes heureux de vous proposer, idéalement située dans Guécélard (72230), cette maison de 6 pièces de 105 m² et de 650 m² de terrain. Elle est composée de quatre chambres, d'une cuisine et de deux salles de bains.
C'est une maison de 2 niveaux. Elle est neuve.
Cette maison se trouve dans un secteur attractif. Il y a l'École Primaire Publique René Cassin à moins de 10 minutes à pied. Côté transports, on trouve quatre gares à moins de 10 minutes en voiture. Il y a un tennis et deux commerces à quelques minutes.
Elle est proposée à l'achat pour 289 000 €.
Contactez François HOUDAYER (06-23-38-26-90) pour toute information sur la maison ou sur les modalités de vente. Maine Construction Le Mans vous accompagne dans toutes vos démarches et à toutes les étapes de votre projet.

Mentions légales

Terrain proposé par un partenaire foncier selon disponibilités et autorisation de publicité au prix de 57 500 €. Hors droit d'enregistrement et frais de notaire. Terrain + Maison proposés au prix de 289 000 € (Hors branchements et raccordements, papiers peints, peintures, revêtement de sol dans les chambres. Tarif modifiable sans préavis). Etiquette énergie : A. Différents modèles disponibles pour ce terrain. Assurances et garanties du constructeur (RC professionnelle, décennale, dommage ouvrage, garantie de remboursement de l'acompte, livraison à prix et délai convenu) : https://www.maine-construction.fr/mentions-legales/. HEXAOM Services est enregistré auprès de l'ORIAS en tant que Courtier en financement, Niveau 1, sous le numéro 14001345.

Contactez l'agence de Le Mans

02 43 21 93 33

    * Champs obligatoires

    Vos informations sont traitées par HEXAOM et transmises à un conseiller commercial qui vous contactera afin de répondre à votre demande. Les plans et images présentés sur notre site sont la propriété d’HEXAOM et ne peuvent pas être reproduits sans son accord. Pour retrouver notre politique de protection des données personnelles et exercer vos droits conformément à la « loi informatique et liberté » cliquez-ici.