Maison neuve à
Domfront-en-Champagne (72240) Référence : FH2342114_7

Prix du projet : Maison avec Terrain

prix 295 000 €

  • 4 pièces
  • 3 chambres
  • Surface maison 130 m2

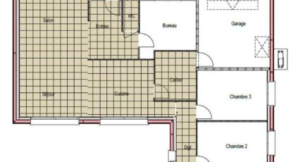
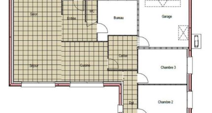
VENTE : maison de 4 pièces (130 m²) à Domfront-en-Champagne
IDÉALEMENT SITUÉE - MAISON 4 PIÈCES NEUVE
À vendre : à quelques minutes de la gare, idéalement située dans Domfront-en-Champagne (72240), nous sommes ravis de vous proposer cette maison de 4 pièces de plain-pied de 130 m².
Son intérieur est composé de trois chambres, d'une cuisine et de deux salles de bains. Cette maison est neuve.
Le terrain de la propriété s'étend sur 2 277 m².
Cette maison se situe dans un secteur prisé. On y trouve une école primaire. Niveau transports, on trouve la gare Domfront-en-Champagne à moins de 10 minutes à pied. Les autoroutes A11 et A28 sont accessibles à moins de 15 km et Le Mans est situé à 18 km. Il y a un commerce et une boulangerie à quelques minutes du logement.
Son prix de vente est de 295 000 €.
N'hésitez pas à prendre contact avec notre agence (HOUDAYER François : 06-23-38-26-90) pour tout renseignement sur la propriété ou sur les modalités de vente.

Mentions légales

Terrain proposé par un partenaire foncier selon disponibilités et autorisation de publicité au prix de 28 000 €. Hors droit d'enregistrement et frais de notaire. Maison proposée, avec un contrat de construction de maison individuelle, dans le cadre de la loi du 19/12/1990, au prix de 267 000 € (Hors branchements et raccordements, papiers peints, peintures, revêtement de sol dans les chambres, qui sont chiffrés dans les travaux qui restent à charge du client. Tarif modifiable sans préavis). Étiquette énergie : A. Différents modèles disponibles pour ce terrain. Assurances et garanties du constructeur comprises (RC professionnelle, décennale, dommage ouvrage).

Contactez l'agence de Le Mans

02 43 21 93 33

    * Champs obligatoires

    Vos informations sont traitées par HEXAOM et transmises à un conseiller commercial qui vous contactera afin de répondre à votre demande. Les plans et images présentés sur notre site sont la propriété d’HEXAOM et ne peuvent pas être reproduits sans son accord. Pour retrouver notre politique de protection des données personnelles et exercer vos droits conformément à la « loi informatique et liberté » cliquez-ici.