Maison neuve à
Domfront-en-Champagne (72240) Référence : FH2342114_6

Prix du projet : Maison avec Terrain

prix 245 000 €

  • 6 pièces
  • 3 chambres
  • Surface maison 98 m2

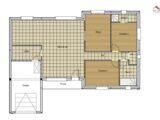
VENTE : maison T6 (98 m²) à Domfront-en-Champagne
IDÉALEMENT SITUÉE - MAISON 6 PIÈCES NEUVE
En vente : à proximité de la gare, Maine Construction Le Mans vous présente cette maison de 6 pièces de plain-pied de 98 m² et de 2 277 m² de terrain idéalement située dans Domfront-en-Champagne (72240). Conçue de plain-pied, elle inclut trois chambres, une cuisine et deux salles de bains.
Cette maison est neuve.
La maison se situe dans un secteur prisé. Une école primaire y est implantée. Niveau transports, on trouve la gare Domfront-en-Champagne à moins de 10 minutes à pied. Les autoroutes A11 et A28 sont accessibles à moins de 15 km et Le Mans se situe à 18 km. Il y a un commerce et une boulangerie dans les environs.
Elle est proposée à l'achat pour 245 000 €.
Contactez notre agence (François HOUDAYER : 06-23-38-26-90) pour obtenir de plus amples renseignements sur la maison. Maine Construction Le Mans est là pour vous accompagner dans toutes vos démarches.

Mentions légales

Terrain proposé par un partenaire foncier selon disponibilités et autorisation de publicité au prix de 28 000 €. Hors droit d'enregistrement et frais de notaire. Maison proposée, avec un contrat de construction de maison individuelle, dans le cadre de la loi du 19/12/1990, au prix de 217 000 € (Hors branchements et raccordements, papiers peints, peintures, revêtement de sol dans les chambres, qui sont chiffrés dans les travaux qui restent à charge du client. Tarif modifiable sans préavis). Étiquette énergie : A. Différents modèles disponibles pour ce terrain. Assurances et garanties du constructeur comprises (RC professionnelle, décennale, dommage ouvrage).

Contactez l'agence de Le Mans

02 43 21 93 33

    * Champs obligatoires

    Vos informations sont traitées par HEXAOM et transmises à un conseiller commercial qui vous contactera afin de répondre à votre demande. Les plans et images présentés sur notre site sont la propriété d’HEXAOM et ne peuvent pas être reproduits sans son accord. Pour retrouver notre politique de protection des données personnelles et exercer vos droits conformément à la « loi informatique et liberté » cliquez-ici.