Maison neuve à
Domfront-en-Champagne (72240) Référence : FH2342114_10

Prix du projet : Maison avec Terrain

prix 299 000 €

  • 6 pièces
  • 3 chambres
  • Surface maison 128 m2

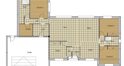
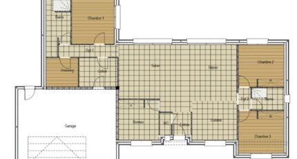
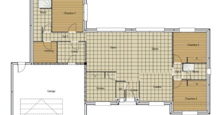
Maison de 6 pièces (128 m²) en vente à Domfront-en-Champagne
IDÉALEMENT SITUÉE - MAISON 6 PIÈCES NEUVE
À proximité de la gare, découvrez à vendre, idéalement située dans Domfront-en-Champagne (72240), cette maison de 6 pièces de plain-pied de 128 m².
Son intérieur dispose de trois chambres, d'une cuisine et de deux salles de bains. Cette maison est neuve.
Le terrain du bien s'étend sur 2 277 m².
La maison se situe dans un secteur convoité. Une école primaire y est implantée. Niveau transports, on trouve la gare Domfront-en-Champagne à moins de 10 minutes à pied. Les autoroutes A11 et A28 sont accessibles à moins de 15 km et Le Mans se situe à 18 km. Il y a un commerce et une boulangerie à quelques minutes à peine.
Elle est à vendre pour la somme de 299 000 €.
Contactez François HOUDAYER (06-23-38-26-90) pour obtenir de plus amples informations sur la maison, sur les démarches à suivre ou sur les modalités de vente.

Mentions légales

Terrain proposé par un partenaire foncier selon disponibilités et autorisation de publicité au prix de 28 000 €. Hors droit d'enregistrement et frais de notaire. Maison proposée, avec un contrat de construction de maison individuelle, dans le cadre de la loi du 19/12/1990, au prix de 271 000 € (Hors branchements et raccordements, papiers peints, peintures, revêtement de sol dans les chambres, qui sont chiffrés dans les travaux qui restent à charge du client. Tarif modifiable sans préavis). Étiquette énergie : A. Différents modèles disponibles pour ce terrain. Assurances et garanties du constructeur comprises (RC professionnelle, décennale, dommage ouvrage).

Contactez l'agence de Le Mans

02 43 21 93 33

    * Champs obligatoires

    Vos informations sont traitées par HEXAOM et transmises à un conseiller commercial qui vous contactera afin de répondre à votre demande. Les plans et images présentés sur notre site sont la propriété d’HEXAOM et ne peuvent pas être reproduits sans son accord. Pour retrouver notre politique de protection des données personnelles et exercer vos droits conformément à la « loi informatique et liberté » cliquez-ici.