Maison neuve à
Cures (72240) Référence : FH2350117_7

Prix du projet : Maison avec Terrain

prix 315 000 €

  • 7 pièces
  • 3 chambres
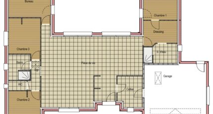
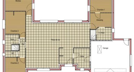
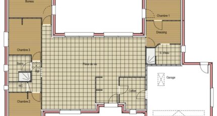
  • Surface maison 134 m2

VENTE : maison F7 (134 m²) à Cures
IDÉALEMENT SITUÉE - MAISON 7 PIÈCES NEUVE
À vendre à 17 km du Mans, Maine Construction Le Mans vous présente cette maison de 7 pièces de plain-pied de 134 m² et de 1 125 m² de terrain, idéalement située dans Cures (72240).
Conçue de plain-pied, elle inclut trois chambres, une cuisine et deux salles de bains. Cette maison est neuve.
La maison se trouve dans un secteur convoité. Il y a l'École Élémentaire Publique à moins de 10 minutes à pied. Niveau transports en commun, on trouve les gares Domfront-en-Champagne, Conlie et Crissé à moins de 10 minutes en voiture. Les autoroutes A11, A28 et A81 sont accessibles à moins de 19 km. Il y a une boulangerie à quelques minutes du bien.
Son prix de vente est de 315 000 €.
Prenez contact avec notre agence (HOUDAYER François : 06-23-38-26-90) pour plus d'informations sur la maison ou sur les démarches à suivre.

Mentions légales

Terrain proposé par un partenaire foncier selon disponibilités et autorisation de publicité au prix de 38 000 €. Hors droit d'enregistrement et frais de notaire. Terrain + Maison proposés au prix de 315 000 € (Hors branchements et raccordements, papiers peints, peintures, revêtement de sol dans les chambres. Tarif modifiable sans préavis). Etiquette énergie : A. Différents modèles disponibles pour ce terrain. Assurances et garanties du constructeur (RC professionnelle, décennale, dommage ouvrage, garantie de remboursement de l'acompte, livraison à prix et délai convenu) : https://www.maine-construction.fr/mentions-legales/. HEXAOM Services est enregistré auprès de l'ORIAS en tant que Courtier en financement, Niveau 1, sous le numéro 14001345.

Contactez l'agence de Le Mans

02 43 21 93 33

    * Champs obligatoires

    Vos informations sont traitées par HEXAOM et transmises à un conseiller commercial qui vous contactera afin de répondre à votre demande. Les plans et images présentés sur notre site sont la propriété d’HEXAOM et ne peuvent pas être reproduits sans son accord. Pour retrouver notre politique de protection des données personnelles et exercer vos droits conformément à la « loi informatique et liberté » cliquez-ici.