Maison neuve à
Cures (72240) Référence : FH2350117_3

Prix du projet : Maison avec Terrain

prix 282 000 €

  • 5 pièces
  • 4 chambres
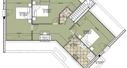
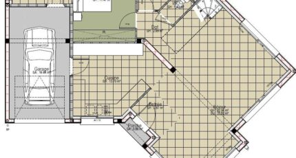
  • Surface maison 119 m2

VENTE : maison de 5 pièces (119 m²) à Cures
IDÉALEMENT SITUÉE - MAISON 5 PIÈCES NEUVE
En vente à deux pas du Mans, Maine Construction Le Mans vous présente, idéalement située dans Cures (72240), cette maison de 5 pièces de 119 m² et de 1 125 m² de terrain.
Il s'agit d'une maison de 2 niveaux. Elle inclut quatre chambres, une cuisine et deux salles de bains. La maison est neuve.
La maison est située dans un secteur prisé. Il y a l'École Élémentaire Publique à moins de 10 minutes à pied. Côté transports en commun, on trouve les gares Domfront-en-Champagne, Conlie et Crissé à moins de 10 minutes en voiture. Les autoroutes A11, A28 et A81 sont accessibles à moins de 19 km. Il y a une boulangerie à proximité.
Elle est à vendre pour la somme de 282 000 €.
Contactez notre agence (François HOUDAYER : 06-23-38-26-90) pour plus de renseignements sur le bien, sur les modalités de vente ou sur les démarches à suivre. Maine Construction Le Mans vous accompagne dans tous vos projets immobiliers et à toutes les étapes de votre projet.

Mentions légales

Terrain proposé par un partenaire foncier selon disponibilités et autorisation de publicité au prix de 38 000 €. Hors droit d'enregistrement et frais de notaire. Maison proposée, avec un contrat de construction de maison individuelle, dans le cadre de la loi du 19/12/1990, au prix de 244 000 € (Hors branchements et raccordements, papiers peints, peintures, revêtement de sol dans les chambres, qui sont chiffrés dans les travaux qui restent à charge du client. Tarif modifiable sans préavis). Étiquette énergie : A. Différents modèles disponibles pour ce terrain. Assurances et garanties du constructeur comprises (RC professionnelle, décennale, dommage ouvrage).

Contactez l'agence de Le Mans

02 43 21 93 33

    * Champs obligatoires

    Vos informations sont traitées par HEXAOM et transmises à un conseiller commercial qui vous contactera afin de répondre à votre demande. Les plans et images présentés sur notre site sont la propriété d’HEXAOM et ne peuvent pas être reproduits sans son accord. Pour retrouver notre politique de protection des données personnelles et exercer vos droits conformément à la « loi informatique et liberté » cliquez-ici.