Maison neuve à
Cures (72240) Référence : FH2350117_13

Prix du projet : Maison avec Terrain

prix 182 000 €

  • 4 pièces
  • 3 chambres
  • Surface maison 57 m2

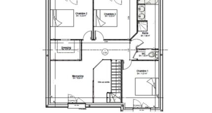
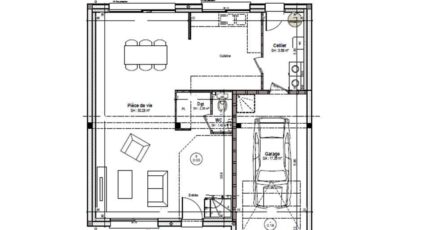
Cures : maison F4 (57 m²) à vendre
IDÉALEMENT SITUÉE - MAISON 4 PIÈCES NEUVE
À vendre à quelques kilomètres du Mans, laissez vous charmer par cette maison de 4 pièces de 57 m² et de 1 125 m² de terrain idéalement située dans Cures (72240). Elle se divise en trois chambres, une cuisine et une salle de bains.
Il s'agit d'une maison de 2 niveaux. Elle est neuve.
Cette maison se situe dans un quartier attractif. On trouve l'École Élémentaire Publique à moins de 10 minutes à pied. Côté transports, il y a trois gares (Domfront-en-Champagne, Conlie et Crissé) à moins de 10 minutes en voiture. Les autoroutes A11, A28 et A81 sont accessibles à moins de 19 km. On trouve une boulangerie dans les environs.
Elle est à vendre pour la somme de 182 000 €.
Contactez notre agence (HOUDAYER François : 06-23-38-26-90) pour toute information sur la maison. Maine Construction Le Mans vous accompagne dans toutes vos démarches et dans tous vos projets immobiliers.

Mentions légales

Terrain proposé par un partenaire foncier selon disponibilités et autorisation de publicité au prix de 38 000 €. Hors droit d'enregistrement et frais de notaire. Maison proposée, avec un contrat de construction de maison individuelle, dans le cadre de la loi du 19/12/1990, au prix de 144 000 € (Hors branchements et raccordements, papiers peints, peintures, revêtement de sol dans les chambres, qui sont chiffrés dans les travaux qui restent à charge du client. Tarif modifiable sans préavis). Étiquette énergie : A. Différents modèles disponibles pour ce terrain. Assurances et garanties du constructeur comprises (RC professionnelle, décennale, dommage ouvrage).

Contactez l'agence de Le Mans

02 43 21 93 33

    * Champs obligatoires

    Vos informations sont traitées par HEXAOM et transmises à un conseiller commercial qui vous contactera afin de répondre à votre demande. Les plans et images présentés sur notre site sont la propriété d’HEXAOM et ne peuvent pas être reproduits sans son accord. Pour retrouver notre politique de protection des données personnelles et exercer vos droits conformément à la « loi informatique et liberté » cliquez-ici.