Maison neuve à
Courcebœufs (72290) Référence : FH2328036_9

Prix du projet : Maison avec Terrain

prix 312 000 €

  • 6 pièces
  • 3 chambres
  • Surface maison 128 m2

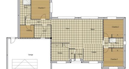
VENTE d'une maison de 6 pièces (128 m²) à Courceboeufs
IDÉALEMENT SITUÉE - MAISON 6 PIÈCES NEUVE
En vente : située à 17 km du Mans, ayez le coup de coeur pour cette maison de 6 pièces de plain-pied de 128 m² et de 467 m² de terrain idéalement située dans Courceboeufs (72290).
Conçue de plain-pied, elle offre trois chambres, une cuisine et deux salles de bains. Cette maison est neuve.
Cette maison se trouve dans un quartier convoité. Une école primaire y est implantée. Côté transports en commun, il y a quatre gares à moins de 10 minutes en voiture. Il y a un accès à l'autoroute A11 à 10 km.
Elle est proposée à l'achat pour 312 000 €.
Contactez François HOUDAYER (06-23-38-26-90) pour tout renseignement sur la maison.

Mentions légales

Terrain proposé par un partenaire foncier selon disponibilités et autorisation de publicité au prix de 41 500 €. Hors droit d'enregistrement et frais de notaire. Maison proposée, avec un contrat de construction de maison individuelle, dans le cadre de la loi du 19/12/1990, au prix de 270 500 € (Hors branchements et raccordements, papiers peints, peintures, revêtement de sol dans les chambres, qui sont chiffrés dans les travaux qui restent à charge du client. Tarif modifiable sans préavis). Étiquette énergie : A. Différents modèles disponibles pour ce terrain. Assurances et garanties du constructeur comprises (RC professionnelle, décennale, dommage ouvrage).

Contactez l'agence de Le Mans

02 43 21 93 33

    * Champs obligatoires

    Vos informations sont traitées par HEXAOM et transmises à un conseiller commercial qui vous contactera afin de répondre à votre demande. Les plans et images présentés sur notre site sont la propriété d’HEXAOM et ne peuvent pas être reproduits sans son accord. Pour retrouver notre politique de protection des données personnelles et exercer vos droits conformément à la « loi informatique et liberté » cliquez-ici.