Maison neuve à
Courcebœufs (72290) Référence : FH2328036_7

Prix du projet : Maison avec Terrain

prix 315 000 €

  • 6 pièces
  • 3 chambres
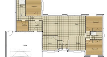
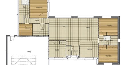
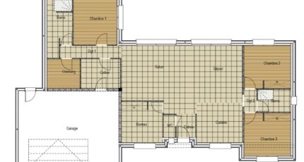
  • Surface maison 128 m2

Courceboeufs : maison T6 (128 m²) en vente
IDÉALEMENT SITUÉE - MAISON 6 PIÈCES NEUVE
À vendre : à deux pas du Mans, Maine Construction Le Mans vous propose cette maison de 6 pièces de plain-pied de 128 m², idéalement située dans Courceboeufs (72290).
Son intérieur inclut trois chambres, une cuisine et deux salles de bains. Cette maison est neuve.
Le terrain de la propriété est de 467 m².
La maison se situe dans un quartier recherché. Une école primaire y est implantée. Niveau transports, on trouve quatre gares à moins de 10 minutes en voiture. Il y a un accès à l'autoroute A11 à 10 km.
Son prix de vente est de 315 000 €.
Contactez notre agence (François HOUDAYER : 06-23-38-26-90) pour tout renseignement sur la maison, sur les modalités de vente ou sur les démarches à suivre. Maine Construction Le Mans vous accompagne à toutes les étapes de l'achat et dans tous vos projets immobiliers.

Mentions légales

Terrain proposé par un partenaire foncier selon disponibilités et autorisation de publicité au prix de 41 500 €. Hors droit d'enregistrement et frais de notaire. Maison proposée, avec un contrat de construction de maison individuelle, dans le cadre de la loi du 19/12/1990, au prix de 273 500 € (Hors branchements et raccordements, papiers peints, peintures, revêtement de sol dans les chambres, qui sont chiffrés dans les travaux qui restent à charge du client. Tarif modifiable sans préavis). Étiquette énergie : A. Différents modèles disponibles pour ce terrain. Assurances et garanties du constructeur comprises (RC professionnelle, décennale, dommage ouvrage).

Contactez l'agence de Le Mans

02 43 21 93 33

    * Champs obligatoires

    Vos informations sont traitées par HEXAOM et transmises à un conseiller commercial qui vous contactera afin de répondre à votre demande. Les plans et images présentés sur notre site sont la propriété d’HEXAOM et ne peuvent pas être reproduits sans son accord. Pour retrouver notre politique de protection des données personnelles et exercer vos droits conformément à la « loi informatique et liberté » cliquez-ici.