Maison neuve à
Courcebœufs (72290) Référence : FH2328036_3

Prix du projet : Maison avec Terrain

prix 345 000 €

  • 8 pièces
  • 6 chambres
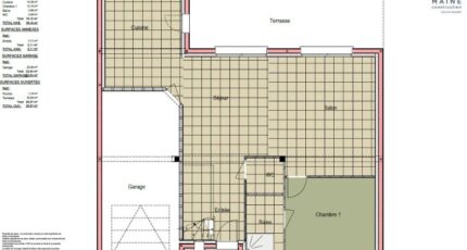
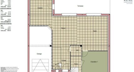
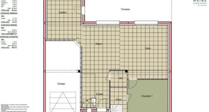
  • Surface maison 150 m2

Courceboeufs : maison T8 (150 m²) à vendre
IDÉALEMENT SITUÉE - MAISON 8 PIÈCES NEUVE
En vente : localisée à quelques kilomètres du Mans, idéalement située dans Courceboeufs (72290), votre agence Maine Construction Le Mans est heureuse de vous présenter cette maison de 8 pièces de 150 m² et de 467 m² de terrain.
C'est une maison de 2 niveaux. Elle inclut six chambres, une cuisine et deux salles de bains. La maison est neuve.
Cette maison est située dans un secteur recherché. On y trouve une école primaire. Côté transports, on trouve quatre gares à moins de 10 minutes en voiture. L'autoroute A11 est accessible à 10 km.
Son prix de vente est de 345 000 €.
Prenez contact avec notre constructeur (HOUDAYER François : 06-23-38-26-90) pour tout renseignement sur la maison. Maine Construction Le Mans est là pour vous accompagner dans toutes vos démarches.

Mentions légales

Terrain proposé par un partenaire foncier selon disponibilités et autorisation de publicité au prix de 41 500 €. Hors droit d'enregistrement et frais de notaire. Maison proposée, avec un contrat de construction de maison individuelle, dans le cadre de la loi du 19/12/1990, au prix de 303 500 € (Hors branchements et raccordements, papiers peints, peintures, revêtement de sol dans les chambres, qui sont chiffrés dans les travaux qui restent à charge du client. Tarif modifiable sans préavis). Étiquette énergie : A. Différents modèles disponibles pour ce terrain. Assurances et garanties du constructeur comprises (RC professionnelle, décennale, dommage ouvrage).

Contactez l'agence de Le Mans

02 43 21 93 33

    * Champs obligatoires

    Vos informations sont traitées par HEXAOM et transmises à un conseiller commercial qui vous contactera afin de répondre à votre demande. Les plans et images présentés sur notre site sont la propriété d’HEXAOM et ne peuvent pas être reproduits sans son accord. Pour retrouver notre politique de protection des données personnelles et exercer vos droits conformément à la « loi informatique et liberté » cliquez-ici.