Maison neuve à
Courcebœufs (72290) Référence : FH2328036_10

Prix du projet : Maison avec Terrain

prix 255 000 €

  • 4 pièces
  • 3 chambres
  • Surface maison 105 m2

Courceboeufs : maison F4 (105 m²) en vente
IDÉALEMENT SITUÉE - MAISON 4 PIÈCES NEUVE
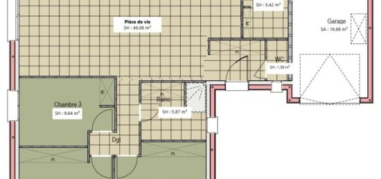
À 17 km du Mans, notre agence Maine Construction Le Mans est heureuse de vous présenter cette maison de 4 pièces de plain-pied de 105 m² et de 467 m² de terrain idéalement située dans Courceboeufs (72290). Son intérieur se divise en trois chambres, une cuisine et une salle de bains.
La maison est neuve.
La maison se situe dans un quartier prisé. On y trouve une école primaire. Côté transports en commun, il y a quatre gares à moins de 10 minutes en voiture. Il y a un accès à l'autoroute A11 à 10 km.
Elle est à vendre pour la somme de 255 000 €.
N'hésitez pas à prendre contact avec François HOUDAYER (06-23-38-26-90) pour obtenir de plus amples renseignements sur la propriété ou sur les démarches à suivre.

Mentions légales

Terrain proposé par un partenaire foncier selon disponibilités et autorisation de publicité au prix de 41 500 €. Hors droit d'enregistrement et frais de notaire. Maison proposée, avec un contrat de construction de maison individuelle, dans le cadre de la loi du 19/12/1990, au prix de 213 500 € (Hors branchements et raccordements, papiers peints, peintures, revêtement de sol dans les chambres, qui sont chiffrés dans les travaux qui restent à charge du client. Tarif modifiable sans préavis). Étiquette énergie : A. Différents modèles disponibles pour ce terrain. Assurances et garanties du constructeur comprises (RC professionnelle, décennale, dommage ouvrage).

Contactez l'agence de Le Mans

02 43 21 93 33

    * Champs obligatoires

    Vos informations sont traitées par HEXAOM et transmises à un conseiller commercial qui vous contactera afin de répondre à votre demande. Les plans et images présentés sur notre site sont la propriété d’HEXAOM et ne peuvent pas être reproduits sans son accord. Pour retrouver notre politique de protection des données personnelles et exercer vos droits conformément à la « loi informatique et liberté » cliquez-ici.