Maison neuve à
Conlie (72240) Référence : FH2343425_7

Prix du projet : Maison avec Terrain

prix 275 000 €

  • 5 pièces
  • 4 chambres
  • Surface maison 116 m2

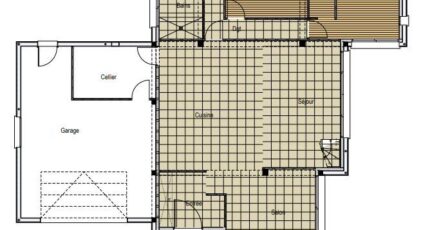
Maison T5 (116 m²) à vendre à Conlie
IDÉALEMENT SITUÉE - MAISON 5 PIÈCES NEUVE
À vendre : à deux pas du Mans, votre agence Maine Construction Le Mans est heureuse de vous présenter, idéalement située dans Conlie (72240), cette maison de 5 pièces de 116 m² et de 655 m² de terrain. Son intérieur se divise en quatre chambres, une cuisine et deux salles de bains.
C'est une maison de 2 niveaux. Elle est neuve.
La maison se trouve dans un quartier prisé. Il y a des écoles maternelles et élémentaires à moins de 10 minutes à pied, dont l'École Primaire Privée Saint Joseph et une structure d'accueil pour les tout-petits. Côté transports en commun, on trouve la gare Conlie dans un rayon de 1 km. Les autoroutes A11, A28 et A81 sont accessibles à moins de 20 km. Il y a une bibliothèque, un supermarché, deux boulangeries, trois commerces, un bureau de poste et une boucherie-charcuterie à proximité du logement. Enfin, le marché Place des Halles anime le quartier chaque jeudi matin.
Elle est à vendre pour la somme de 275 000 €.
Contactez notre agence (François HOUDAYER : 06-23-38-26-90) pour toute question sur la maison ou sur les démarches à suivre.

Mentions légales

Terrain proposé par un partenaire foncier selon disponibilités et autorisation de publicité au prix de 49 500 €. Hors droit d'enregistrement et frais de notaire. Maison proposée, avec un contrat de construction de maison individuelle, dans le cadre de la loi du 19/12/1990, au prix de 225 500 € (Hors branchements et raccordements, papiers peints, peintures, revêtement de sol dans les chambres, qui sont chiffrés dans les travaux qui restent à charge du client. Tarif modifiable sans préavis). Étiquette énergie : A. Différents modèles disponibles pour ce terrain. Assurances et garanties du constructeur comprises (RC professionnelle, décennale, dommage ouvrage).

Contactez l'agence de Le Mans

02 43 21 93 33

    * Champs obligatoires

    Vos informations sont traitées par HEXAOM et transmises à un conseiller commercial qui vous contactera afin de répondre à votre demande. Les plans et images présentés sur notre site sont la propriété d’HEXAOM et ne peuvent pas être reproduits sans son accord. Pour retrouver notre politique de protection des données personnelles et exercer vos droits conformément à la « loi informatique et liberté » cliquez-ici.