Maison neuve à
Conlie (72240) Référence : FH2343425_5

Prix du projet : Maison avec Terrain

prix 235 000 €

  • 4 pièces
  • 3 chambres
  • Surface maison 90 m2

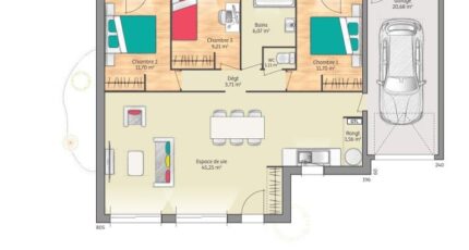
Maison T4 (90 m²) en vente à Conlie
IDÉALEMENT SITUÉE - MAISON 4 PIÈCES NEUVE
À vendre : localisée à 21 km du Mans, idéalement située dans Conlie (72240), nous sommes heureux de vous proposer cette maison de 4 pièces de plain-pied de 90 m².
Son intérieur offre trois chambres, une cuisine et une salle de bains. La maison est neuve.
Le terrain du bien s'étend sur 655 m².
Cette maison se trouve dans un quartier convoité. Il y a des écoles maternelles et élémentaires à moins de 10 minutes à pied,, comme l'École Primaire Privée Saint Joseph et une structure d'accueil pour la petite enfance. Niveau transports, on trouve la gare Conlie à proximité. Les autoroutes A11, A28 et A81 sont accessibles à moins de 20 km. Il y a une bibliothèque, un supermarché, deux boulangeries, trois commerces, un bureau de poste et une boucherie-charcuterie dans les environs. Le marché Place des Halles anime le quartier chaque jeudi matin.
Elle est proposée à l'achat pour 235 000 €.
Contactez notre agence (HOUDAYER François : 06-23-38-26-90) pour tout renseignement sur la maison. Maine Construction Le Mans est là pour vous accompagner dans tous vos projets immobiliers.

Mentions légales

Terrain proposé par un partenaire foncier selon disponibilités et autorisation de publicité au prix de 49 500 €. Hors droit d'enregistrement et frais de notaire. Maison proposée, avec un contrat de construction de maison individuelle, dans le cadre de la loi du 19/12/1990, au prix de 185 500 € (Hors branchements et raccordements, papiers peints, peintures, revêtement de sol dans les chambres, qui sont chiffrés dans les travaux qui restent à charge du client. Tarif modifiable sans préavis). Étiquette énergie : A. Différents modèles disponibles pour ce terrain. Assurances et garanties du constructeur comprises (RC professionnelle, décennale, dommage ouvrage).

Contactez l'agence de Le Mans

02 43 21 93 33

    * Champs obligatoires

    Vos informations sont traitées par HEXAOM et transmises à un conseiller commercial qui vous contactera afin de répondre à votre demande. Les plans et images présentés sur notre site sont la propriété d’HEXAOM et ne peuvent pas être reproduits sans son accord. Pour retrouver notre politique de protection des données personnelles et exercer vos droits conformément à la « loi informatique et liberté » cliquez-ici.