Maison neuve à
Conlie (72240) Référence : FH2343425_3

Prix du projet : Maison avec Terrain

prix 259 000 €

  • 5 pièces
  • 3 chambres
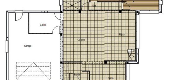
  • Surface maison 92 m2

Maison F5 (92 m²) en vente à Conlie
IDÉALEMENT SITUÉE - MAISON 5 PIÈCES NEUVE
À vendre à 21 km du Mans, idéalement située dans Conlie (72240), Maine Construction Le Mans vous propose cette maison de 5 pièces de plain-pied de 92 m² et de 655 m² de terrain.
Conçue de plain-pied, elle compte trois chambres, une cuisine et une salle de bains. Cette maison est neuve.
Cette maison se trouve dans un secteur convoité. Il y a des écoles maternelles et élémentaires à moins de 10 minutes à pied, dont l'École Primaire Privée Saint Joseph et une crèche. Côté transports, on trouve la gare Conlie dans un rayon de 1 km. Les autoroutes A11, A28 et A81 sont accessibles à moins de 20 km. Il y a une bibliothèque, un supermarché, deux boulangeries, trois commerces, une boucherie-charcuterie et un bureau de poste dans les environs. Ne manquez pas le marché Place des Halles tous les jeudis matin.
Son prix de vente est de 259 000 €.
Contactez François HOUDAYER (tél : 06-23-38-26-90) pour toute question sur la maison ou sur les démarches à suivre.

Mentions légales

Terrain proposé par un partenaire foncier selon disponibilités et autorisation de publicité au prix de 49 500 €. Hors droit d'enregistrement et frais de notaire. Maison proposée, avec un contrat de construction de maison individuelle, dans le cadre de la loi du 19/12/1990, au prix de 209 500 € (Hors branchements et raccordements, papiers peints, peintures, revêtement de sol dans les chambres, qui sont chiffrés dans les travaux qui restent à charge du client. Tarif modifiable sans préavis). Étiquette énergie : A. Différents modèles disponibles pour ce terrain. Assurances et garanties du constructeur comprises (RC professionnelle, décennale, dommage ouvrage).

Contactez l'agence de Le Mans

02 43 21 93 33

    * Champs obligatoires

    Vos informations sont traitées par HEXAOM et transmises à un conseiller commercial qui vous contactera afin de répondre à votre demande. Les plans et images présentés sur notre site sont la propriété d’HEXAOM et ne peuvent pas être reproduits sans son accord. Pour retrouver notre politique de protection des données personnelles et exercer vos droits conformément à la « loi informatique et liberté » cliquez-ici.