Maison neuve à
Conlie (72240) Référence : FH2343425_2

Prix du projet : Maison avec Terrain

prix 262 000 €

  • 6 pièces
  • 3 chambres
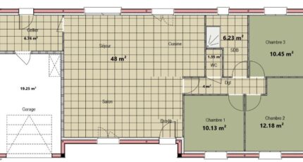
  • Surface maison 99 m2

Maison F6 (99 m²) en vente à Conlie
IDÉALEMENT SITUÉE - MAISON 6 PIÈCES NEUVE
En vente : à 21 km du Mans, ayez le coup de coeur pour cette maison de 6 pièces de plain-pied de 99 m² et de 655 m² de terrain, idéalement située dans Conlie (72240).
Son intérieur se divise en trois chambres, une cuisine et une salle de bains. La maison est neuve.
Le bien est situé dans un secteur recherché. Des écoles primaires sont implantées à moins de 10 minutes à pied,, comme l'École Primaire Privée Saint Joseph, tout comme une structure d'accueil pour les tout-petits. Côté transports, il y a la gare Conlie dans les alentours. Les autoroutes A11, A28 et A81 sont accessibles à moins de 20 km. On trouve une bibliothèque, un supermarché, deux boulangeries, trois commerces, un bureau de poste et une boucherie-charcuterie à proximité. Enfin, le marché Place des Halles anime les environs chaque jeudi matin.
Son prix de vente est de 262 000 €.
N'hésitez pas à prendre contact avec notre agence (HOUDAYER François : 06-23-38-26-90) pour toute question sur la maison.

Mentions légales

Terrain proposé par un partenaire foncier selon disponibilités et autorisation de publicité au prix de 49 500 €. Hors droit d'enregistrement et frais de notaire. Maison proposée, avec un contrat de construction de maison individuelle, dans le cadre de la loi du 19/12/1990, au prix de 212 500 € (Hors branchements et raccordements, papiers peints, peintures, revêtement de sol dans les chambres, qui sont chiffrés dans les travaux qui restent à charge du client. Tarif modifiable sans préavis). Étiquette énergie : A. Différents modèles disponibles pour ce terrain. Assurances et garanties du constructeur comprises (RC professionnelle, décennale, dommage ouvrage).

Contactez l'agence de Le Mans

02 43 21 93 33

    * Champs obligatoires

    Vos informations sont traitées par HEXAOM et transmises à un conseiller commercial qui vous contactera afin de répondre à votre demande. Les plans et images présentés sur notre site sont la propriété d’HEXAOM et ne peuvent pas être reproduits sans son accord. Pour retrouver notre politique de protection des données personnelles et exercer vos droits conformément à la « loi informatique et liberté » cliquez-ici.